广场改造项目是集停车、就餐、休闲娱乐、职工活动、人防等功能为一体的下沉式广场,拟建地下三层,地面为城市花园式广场。该工程位于xxx,总建筑面积107982.39m2,其中地下建筑面积106592.39m2,地上建筑面积1390m2。
基坑设计概况:本工程地下室东西向约为290m,南北向123m~172m,地下室占地面积约3.7万m2,基坑面积39236m2。室外地坪标高为40.70m,地下室底相对标高为-14.10m。基坑开挖深度约8.4-16.1m,土方开量约53万m2。基坑安全等级为一级。
编制依据 2
一、工程概况 2
二、本项目安全文明施工管理特点 3
三、安全管理目标 3
3.1职业健康安全管理目标 3
3.2安全质量标准化示范工程小组 3
四、现场安全(防护)标准化策划 3
4.1基坑支护及土方开挖阶段总平面图 4
4.2地库主体结构总平面图 5
4.3安全文明施工总平面图 5
4.4 临边防护 5
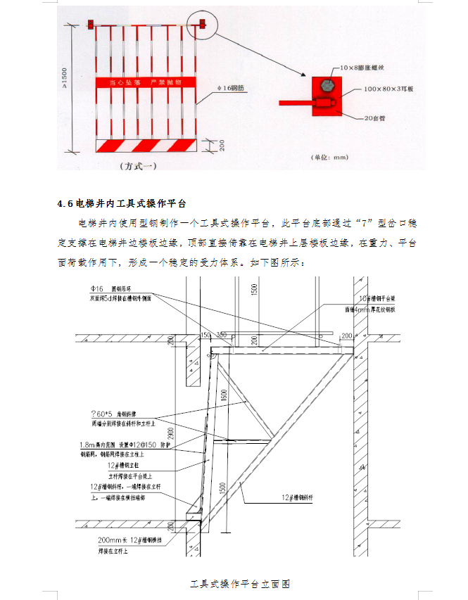
4.5 预留洞口、电梯井口、通道口、楼梯口(间)的防护 7
......







