首页
论文
毕业
图纸
知识
方案
全部
建筑
结构
水利
园林
建筑设计
结构设计
水利工程
给水排水
园林工程
暖通空调
环境保护
路桥工程
岩土工程
工程造价
CAD教程
注册考试
电气工程
电气图纸
电气软件
电气论文
电气毕业设计
电气课件
电气施工
施工交底
工艺工法
常用表格
实习报告
工作总结
电气规范
电气书籍
消弧线圈线路安装图
资料等级:
授权方式:
资料共享
v发布时间:
2016-08-18 17:52:41
资料类型:
RAR
资料大小:
1.34 MB
资料分类:
电气工程
运行环境:
WinXp,Win2003,WinVista,Win ;
解压密码:
civilcn.com
软件介绍
充值VIP
下载帮助
下载地址
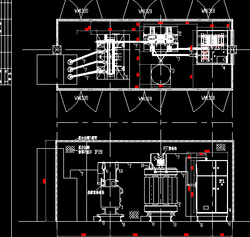
消弧线圈线路安装图,供大家参考!
下载地址
充值VIP
下载帮助
立即下载
土木工程网提醒您:本资料下载权限为
(普通会员)
点击进入下载消弧线圈线路安装图
(需要2积分)
推荐下载
图纸
九层框架剪力墙混合结构会馆改造项目电气施
毕业
公共安全技术电气消防课程设计报告及图纸
施工
二十层五星级饭店机电安装施工组织设计 235
课件
建筑工程电气施工图识图方法(Word文件)
交底
建筑电气安装工程技术交底
CAD
AutoCAD 2019简体中文版注册机(64位32位)
相关下载
10KV变电所硬塑料线路安装施工图纸
消弧线圈一次接线原理图
变电所内配电工程硬塑料线路安装系统图
10KV变电所内配电工程硬塑料线路安装图
变电站消弧线圈系统图
变电站消弧线圈系统图
消弧线圈安装图
消弧线圈一次图
评论
网友评论仅供网友表达个人看法,并不表明土木工程网同意其观点或证实其描述!
验证码:
热门标签
电气工程
电气图纸
电气毕业设计
电气课件
电气施工
施工交底
工艺工法
常用表格
实习报告
工作总结
电气下载
电气图纸
最全电气符号总集(CAD版)
电气课件
电气工程CAD制图教程
电气施工
12 千伏环网柜(箱)标准化设计定制方案(2019 版
施工交底
土建工程施工用电安全技术交底
工艺工法
防雷接地工程工艺流程(PDF格式)
常用表格
建设工程电气工程量清单表格
实习报告
电气专业参观认识实习报告
工作总结
电气工程师个人工作总结
220kV变电站初步设计
某10KV变电所的继电保护设计
某小城市热电厂电气部分毕业设计(含图纸)
火电厂继电保护及防雷工程毕业设计
热点论文
工程知识
建筑论文
2020年土木工程专业就业前景分析
结构论文
工程质量监督墙体裂缝的防治对策分析
水利论文
水利水电工程定额对投标报价的应用
园林论文
园林景观设计中声景学应用研究
路桥论文
最新高速公路施工方案、施组、应急预案分享!
电气论文
电缆桥架伸缩节设置方式,你都了解吗?
造价论文
建筑工程造价结算、概算方法研究
CAD教程
实例讲解CAD制图比例
施工知识
混凝土开裂的原因及防治对策,超全!
建筑知识
住宅装修最实用的户型风水知识!
造价知识
土建软件GTJ2018中的十个问题及解决方法
结构知识
16G101图集变化需要掌握的要点,收藏学习!
电气知识
电气工程成套设计基本知识归纳整理,收藏学习!
安全文明
住宅工程质量通病的15个为什么?
市政知识
填方路基施工工艺及流程
合同知识
工程合同价款调整的五种方法
互动交流
微信扫码关注公众号
获取更多土木资讯