Äúµ±Ç°Î»Ö㺠Ê×Ò³» µçÆø¹¤³Ì» µçÆøÍ¼Ö½
ÎÛË®ÌáÉý±ÃÕ¾¹¤³ÌµçÆø¼°¹¤ÒÕרҵʩ¹¤Í¼£¨PDF¸ñʽ£©
  • ×ÊÁϵȼ¶£º
  • ÊÚȨ·½Ê½£º×ÊÁϹ²Ïí
  • ·¢²¼Ê±¼ä£º2020-06-02 16:45:28
  • ×ÊÁÏÀàÐÍ£ºRAR
  • ×ÊÁÏ´óС£º19.5 MB
  • ×ÊÁÏ·ÖÀࣺµçÆø¹¤³Ì
  • ÔËÐл·¾³£ºWinXp,Win2003,WinVista,Win ;
  • ½âѹÃÜÂ룺civilcn.com
ÎÛË®ÌáÉý±ÃÕ¾¹¤³ÌµçÆø¼°¹¤ÒÕרҵʩ¹¤Í¼£¨PDF¸ñʽ£©
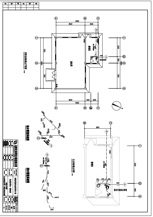
±¾¹¤³ÌµÄ¿ò¼Ü½á¹¹¿¹ÕðµÈ¼¶¸ÄΪËļ¶¡£ÎÛË®ÌáÉý±ÃվվַλÓÚxx¶«±±½Ç,¾àxxÔ¼240m.ÎÛË®ÌáÉý±ÃÕ¾½üÆÚÉè¼ÆÁ÷Á¿Îª105L/s,Ô¶ÆÚÉè¼ÆÁ÷Á¿Îª210L/s.±¾´ÎµçÆøÉè¼Æ·¶Î§Îª10kV½øÏßµçÀÂÍ·ÒÔÄÚ,±ÃÕ¾ÄÚËùÓÐµçÆøÉ豸Åäµç×Կؼ°ÕÕÃ÷.¹©µçµçÔ´:н¨Åäµç¼ä,äê×ã³²Õ¾¶þ¼¶Óõ縺ºÉ,²¢²ÉÓÃÁ½Â·10kVµçÔ´¹©µç.Íâ½Ó10KVµçÔ´Óɽ¨É赥λ¸ºêÚʵʩ,²¢Óɽ¨É赥λµ¥¶ÀίÍÐ,ÐÐÉè¼Æ°²×°¡£¸ººÉ:±ÃÕ¾Ö÷ÒªÓõçÉ豸ΪDZÎÛÆ±,ÁíÓÐС¶¯Á¦É豸.ÕÕÃ÷µÈÁãÐǸººÉ,ÆäÖÐË®±Ã½üÆÚÈÝÁ¿Îª2ÄÜ55kW(Ò»ÓÃÒ»±¸),Ô¶ÆÚΪ355kWË®Öè( Á½ÓÃÒ»±¸) ,¸ñ¿®2̨¹²6.0kW,ÎÛË®±ÃÕ¾½üÆÚ×Ü×°»ú¹¤×÷ÈÝÁ¿120kW,¼ÆËãÈÝÁ¿60kW ,Ñ¡ÓõıäѹÆ÷ÈÝÁ¿Îª160kVA,¼ÆËãºó±äѹÆ÷µÄ¸ºÔØÎª50%,·ûºÏ¹æÔ·ÒªÇó.±äѹÆ÷Ñ¡Ôñ¿¼ÂÇÁËÔ¶ÆÚ¸ººÉ.
Èí¼þ½ØÍ¼
  • ÎÛË®ÌáÉý±ÃÕ¾¹¤³ÌµçÆø¼°¹¤ÒÕרҵʩ¹¤Í¼£¨PDF¸ñʽ£©
  • ÎÛË®ÌáÉý±ÃÕ¾¹¤³ÌµçÆø¼°¹¤ÒÕרҵʩ¹¤Í¼£¨PDF¸ñʽ£©
  • ÎÛË®ÌáÉý±ÃÕ¾¹¤³ÌµçÆø¼°¹¤ÒÕרҵʩ¹¤Í¼£¨PDF¸ñʽ£©
  • ÎÛË®ÌáÉý±ÃÕ¾¹¤³ÌµçÆø¼°¹¤ÒÕרҵʩ¹¤Í¼£¨PDF¸ñʽ£©
  • ÎÛË®ÌáÉý±ÃÕ¾¹¤³ÌµçÆø¼°¹¤ÒÕרҵʩ¹¤Í¼£¨PDF¸ñʽ£©