您当前位置:首页 » 电气工程 » 电气图纸
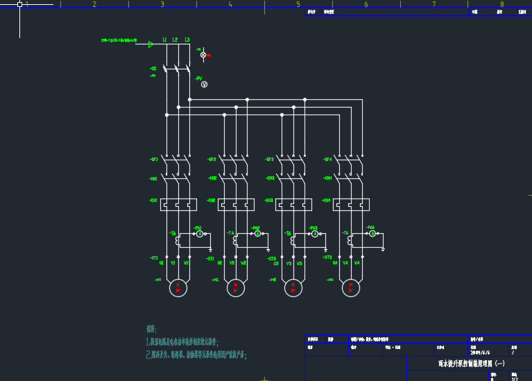
雨水提升泵控制箱设计全套电气原理图
  • 资料等级:
  • 授权方式:资料共享
  • 发布时间:2020-08-08 21:20:10
  • 资料类型:RAR
  • 资料大小:286 KB
  • 资料分类:电气工程
  • 运行环境:WinXp,Win2003,WinVista,Win ;
  • 解压密码:civilcn.com
雨水提升泵控制箱设计全套电气原理图
雨水提升泵控制箱设计全套电气原理图包括雨水提升泵控制箱原理图、雨水提升泵控制箱端子排图、雨水提升泵控制箱内元件及内门屏面布置示意图
软件截图
  • 雨水提升泵控制箱设计全套电气原理图
  • 雨水提升泵控制箱设计全套电气原理图
  • 雨水提升泵控制箱设计全套电气原理图
推荐下载
评论网友评论仅供网友表达个人看法,并不表明土木工程网同意其观点或证实其描述!
验证码: 验证码