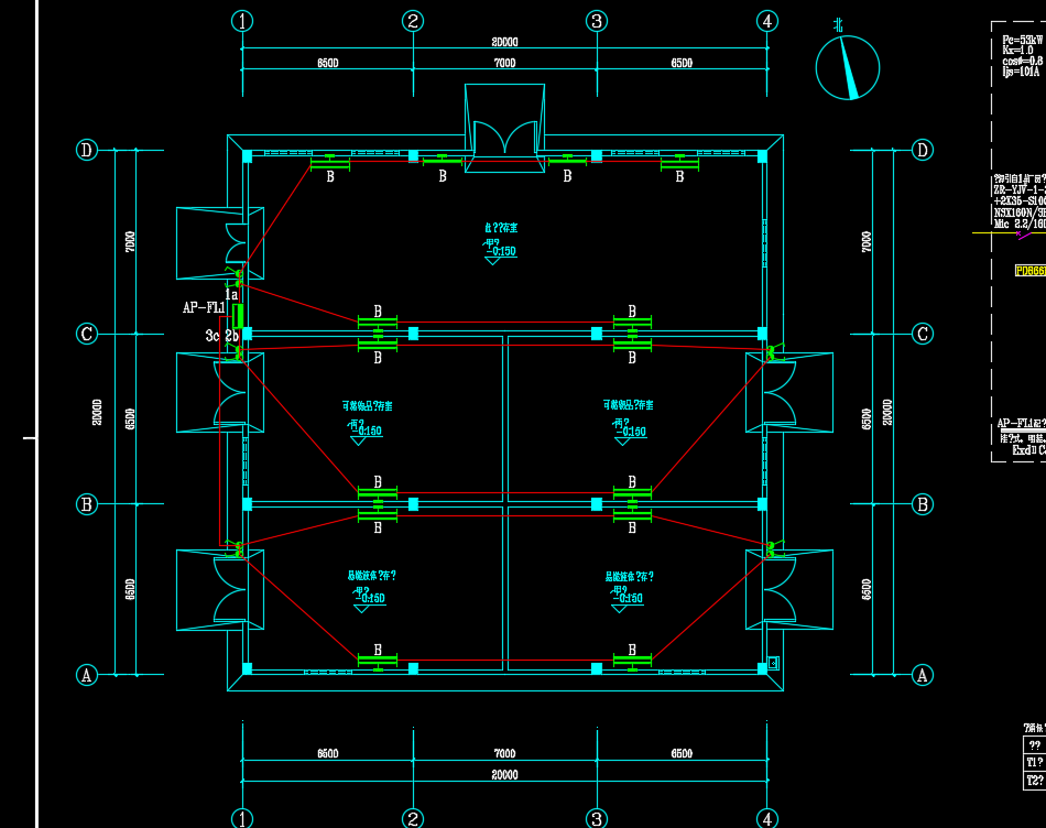
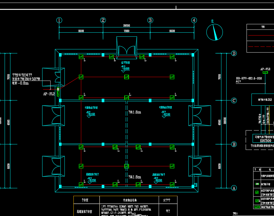
本工程位于XX。总建筑面积约400m2,建筑高度6.2m。本建筑为改造甲类单层库房。根据工艺要求,本工程各房间为爆炸性气体环境2区,各房间存放的物品见图F391Z9-D6。各房间的灯具和其他电器设备均选用隔爆型。
线路敷设
1、灯具选用防爆型LED灯,照度要求:各房间均为50lx。照明支线导线均选用ZR-BV-2.5mm2穿热镀锌钢管沿墙明敷。
2、管线敷设需按以下原则设置,否则应加装过路箱或加大管径: 直线段不超过30m,有一个弯时不超过20m,有二个弯时不超过15m,有三个弯时不超过8m。
3、照明灯具需可靠接地。
4、电缆线路在爆炸危险环境内,必须在相应的防爆接线盒或分线盒内连接或分路。
甲类单层辅料仓库电气施工图纸,包括:配电平面图、照明平面图、电气系统图、消防系统图、消防平面图、可燃气体报警系统图、可燃气体报警平面图、防静电接地平面图、防雷接地平面图等







