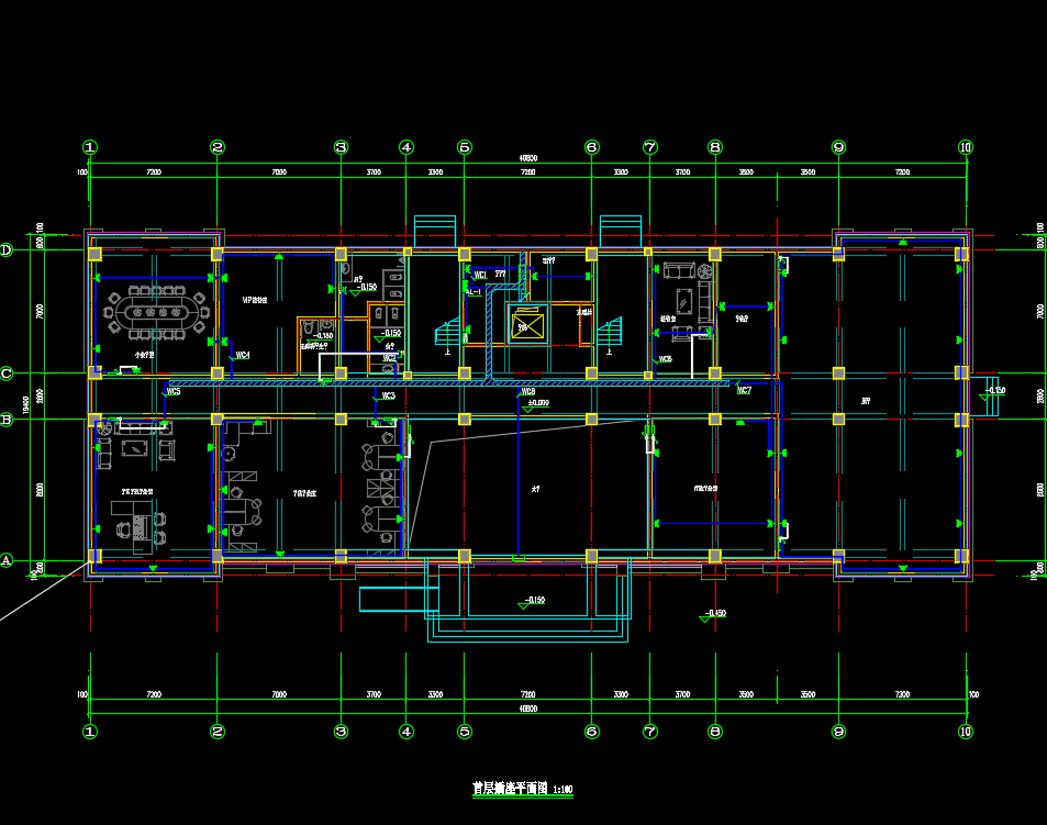
本工程总建筑面积5669.71m2,占地面积921.15m2。建筑层数、高度、高差:地上六层;建筑消防高度23.75m。首层层高4.20m,二层至五层层高3.8m,六层层高3.7m。室内外高差0.450。建筑结构形式为框架结构,使用年限为50年,抗震设防烈度:8度(0.20g)。建筑设计等级分类:多层公共建筑;建筑用途:办公;基底面积为:921.15m2。建筑物耐火等级:地上二级。
设计内容:
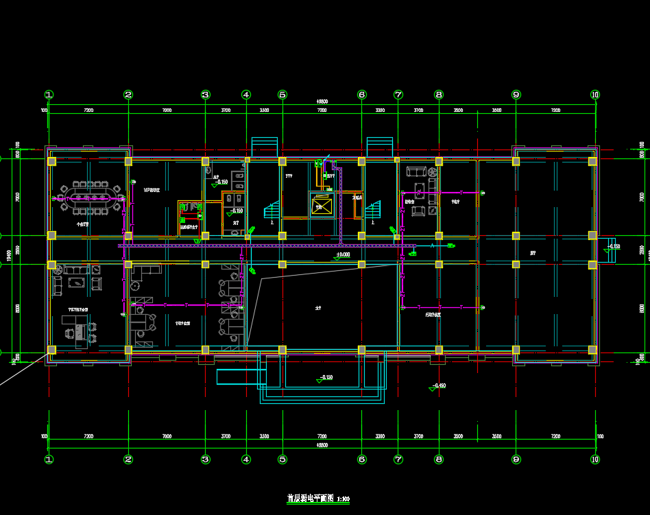
照明配电、电话、宽带网络、监控系统、火灾自动报警、防雷和安全接地系统。
供电电源及配电系统:
1.负荷等级:本工程室外消防用水量为30L/s,应急照明、排烟机、稳压泵等用电为二级负荷,其余用电为三级负荷。
2.供电电源及配电方式:
TN-C-S配电系统,由室外引进低压220/380V电源,采用电缆直埋,埋深室外地坪下0.8米,进户处穿钢管保护伸出散水外1m,室外管口进行封堵,做法见12D9-P14、P15;二级消防负荷设备采用双电源供电,并在最末一级配电装置处自动切换;当常用电源停电时,备用电源自动投入。二级消防负荷设备两路电源要求引自室外不同变压器(变压器10KV高压电源要求引自两组不同一区域变电站的两段母线),采用放射式配电形式供给用电负荷,以保证供电可靠。
3.计量方式:本工程在总柜处计量。
六层框架结构办公楼电气施工图纸,包括:应急照明及疏散指示平面图、照明平面图、插座平面图、火灾自动报警平面图、风机盘管平面图、接地平面图、防雷平面图、照明竖向配电系统图、动力竖向配电系统图、应急照明竖向系统图、监控系统示意图等







