总用地面积17345.6㎡,总建筑面积2584.37㎡,建筑占地面积1229.87㎡。其中,新建垃圾转运站一栋,建筑面积2048.42㎡;配套管理办公用房一栋,楼层数为三层,建筑面积511.950㎡;值班室一间,楼层数为一层,建筑面积24㎡;室外附属工程:室外停车场、维保场、室外道路、室外活动场地、绿化建设挡土墙等。
设计范围
1.本工程设计包括以下电气系统:
1)0.38/0.22kV配电系统;
2)照明、插座系统;
3)建筑物防雷、接地系统及安全措施;
4)综合布线系统。
2.与其它专业设计的分工:
1)需二次装修设计部分需另行深化设计。
2)综合布线系统、有线电视系统仅供参考,需由供应商深化设计。
3)视频监控系统,需另请专业公司进行设计和指导施工。
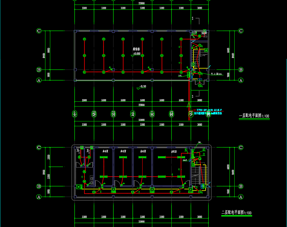
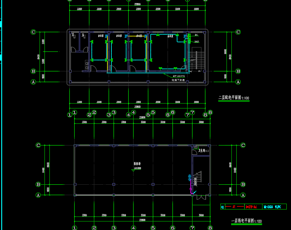
垃圾站办公综合楼电气施工图纸,包括:配电系统图、综合布线系统图、配电平面图、弱电平面图、接地平面图、屋顶防雷平面图等







