本工程规划总用地面积:7947.07m2,总建筑面积:24456.74m2,其中地下建筑面积:4502.34m2。建筑地下1层,地上19层,建筑高度为67.9m;地下层为Ⅲ类汽车库,停车位195辆,地上一~十九层为办公室。防火设计的建筑分类为:一类高层公共建筑;其耐火等级为地上二级,地下一级。
设备安装
1)图形显示系统、火灾报警控制器、总线联动控制盘、手动直接控制盘、总线消防电话主机及火灾广播系统联动电源等设于消防中心控制系统箱体内(详产品安装说明)
2)探测器布置均为吸顶安装,做法详产品安装说明。探测器至墙壁、梁边的水平距离不应小于0.5米,探测器周围0.5米内。
3)消火栓手动按钮安装于消火栓箱内火灾事故广播吸顶安装;手动报警按钮、各种模块、交流隔离器等底边距地米壁装。接线箱、短路保护器、消防电话分机、不应有遮挡物。
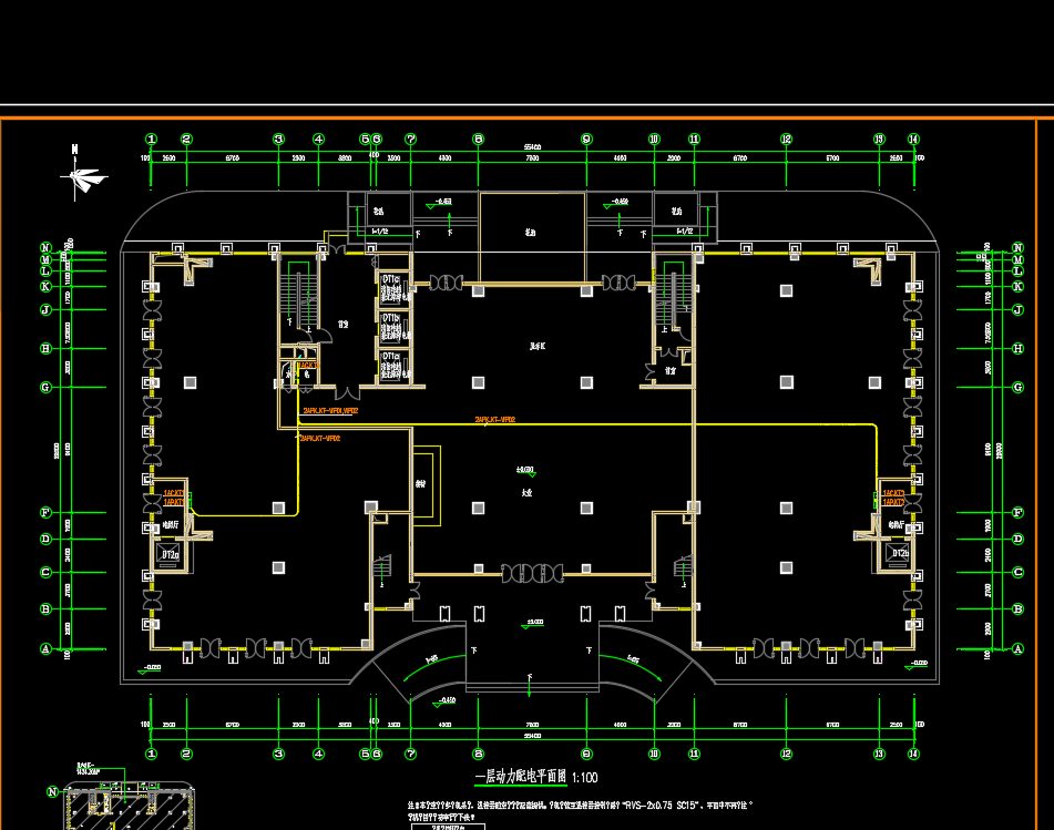
十九层办公楼电气专业施工图纸,包括:火灾自动报警系统图、火灾自动报警平面图、动力配电系统图、动力配电平面图、照明平面图、竖向配电干线系统图、配电干线平面图







