规划用地面积31132.8平方米,总建筑面积10635平方米,主要建设教学综合楼、学生宿舍(男、女)、学生食堂、器材室及公厕、室外运动场、门卫室及道路、围墙大门、绿化、管网、设施设备等配套设施,教学规模为18个教学班,每班约45人,能满足810名学生就读,其中可容纳寄宿学生448人。综合教学楼,总建筑面积为6025.45平方米;建筑高度:21.7米,建筑层数:1+4F。食堂,共2层,建筑主体高度12米,总建筑面积为1473.68平方米。属多层公共建筑。结构形式为框架结构现浇混凝土楼板。宿舍楼,共4层,建筑主体高度20米,总建筑面积为2840.8平方米。属多层公共建筑。结构形式为框架结构现浇混凝土楼板。
设计范围
1.本工程设计包括红线内的以下电气系统:
1)220/380V配电系统;
2)建筑物防雷、接地系统及安全措施;
3)弱电预埋;
2. 本工程电源分界点为配电室。配电室出线回路由本设计提供。
导线选择及敷设
1、照明干线选用0.6/1KV交联聚乙烯绝缘聚氯乙烯护套电力电缆,所有干线均穿SC钢管埋地暗敷或桥架内敷设。
2、照明支线选用WDZ-BYJ-500V聚乙烯绝缘铜芯导线。所有支线均穿PC塑料管沿墙及楼板暗敷。应急照明线路混凝土保护厚度不小于30mm,其余不小于15mm。
3、电缆桥架及线槽穿过墙体、楼板时应用耐火时间不低于穿越处墙、板耐火时间的不燃烧材料封堵。敷设于公共区域的竖向桥架,低于1.8米的部分加金属盖板保护。
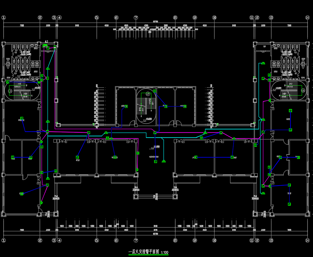
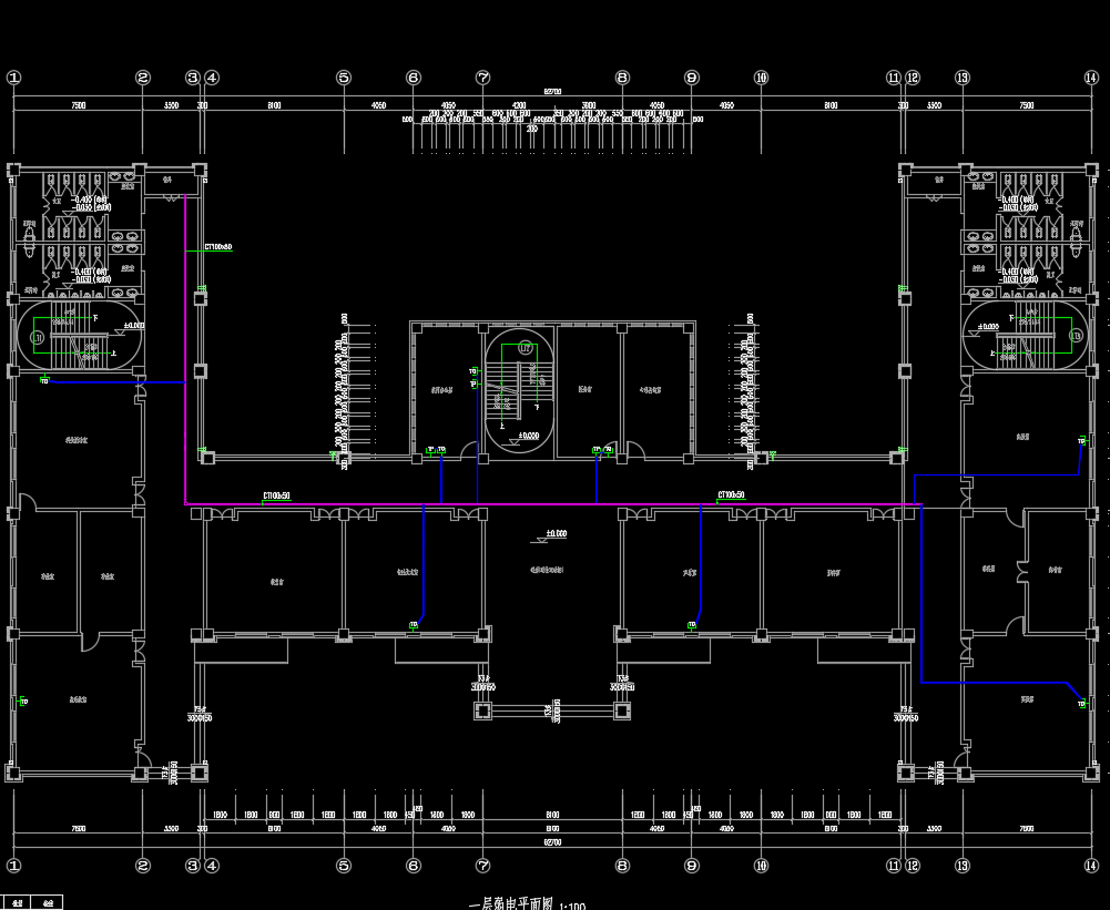
小学教学楼、食堂、宿舍电气施工图纸,包括:系统图、照明平面图、防雷平面图、接地平面图、火灾自动报警系统图、火灾报警平面图、弱电平面图、配电系统图







