Äúµ±Ç°Î»Ö㺠Ê×Ò³» µçÆø¹¤³Ì» µçÆøÍ¼Ö½
Îå²ã½Ìʦ¹«Ô¢µçÆøÊ©¹¤Í¼Ö½
  • ×ÊÁϵȼ¶£º
  • ÊÚȨ·½Ê½£º×ÊÁϹ²Ïí
  • ·¢²¼Ê±¼ä£º2020-12-26 14:29:16
  • ×ÊÁÏÀàÐÍ£ºRAR
  • ×ÊÁÏ´óС£º1.78 MB
  • ×ÊÁÏ·ÖÀࣺµçÆø¹¤³Ì
  • ÔËÐл·¾³£ºWinXp,Win2003,WinVista,Win ;
  • ½âѹÃÜÂ룺civilcn.com
Îå²ã½Ìʦ¹«Ô¢µçÆøÊ©¹¤Í¼Ö½
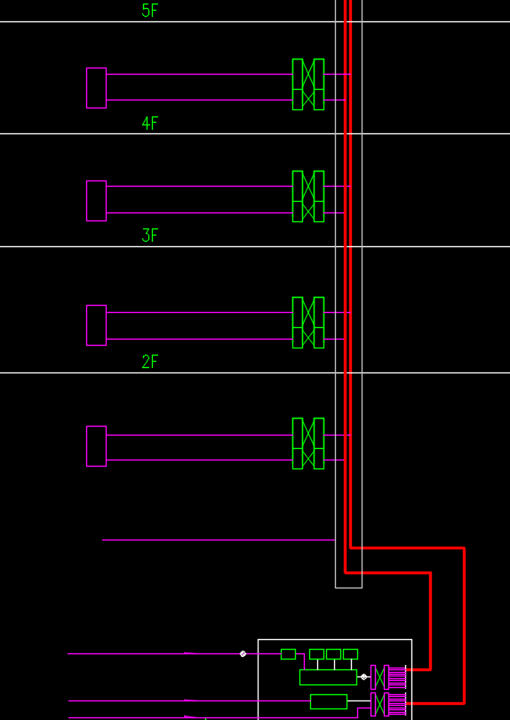
±¾ÏîĿΪXXѧУ½Ìʦ¹«Ô¢Â¥½¨Öþ¡£¸Ãµ¥Ì彨Öþ£¬µØÉÏÎå²ã£¬½¨ÖþÃæ»ýΪ7334ƽ·½Ã×£¬¸Ã½¨Öþ¸ß¶ÈΪ24.0Ã×£¬´øÓй«Ô¢ÃÅÌü¡£

Éè¼Æ·¶Î§£º
µÍѹ¹©Åäµçϵͳ£»ÕÕÃ÷Åäµçϵͳ£»¶¯Á¦É豸Åäµç¼°¿ØÖÆÏµÍ³£»
·ÀÀ×½ÓµØÏµÍ³£»×ۺϲ¼Ïßϵͳ¡£
Èí¼þ½ØÍ¼
  • Îå²ã½Ìʦ¹«Ô¢µçÆøÊ©¹¤Í¼Ö½
  • Îå²ã½Ìʦ¹«Ô¢µçÆøÊ©¹¤Í¼Ö½
  • Îå²ã½Ìʦ¹«Ô¢µçÆøÊ©¹¤Í¼Ö½