您当前位置:首页 » 电气工程 » 电气图纸
八层医院电气弱电设计图
  • 资料等级:
  • 授权方式:资料共享
  • 发布时间:2021-05-24 08:20:01
  • 资料类型:RAR
  • 资料大小:913 KB
  • 资料分类:电气工程
  • 运行环境:WinXp,Win2003,WinVista,Win ;
  • 解压密码:civilcn.com
八层医院电气弱电设计图
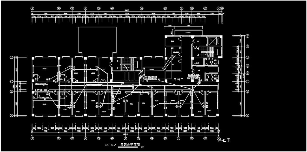
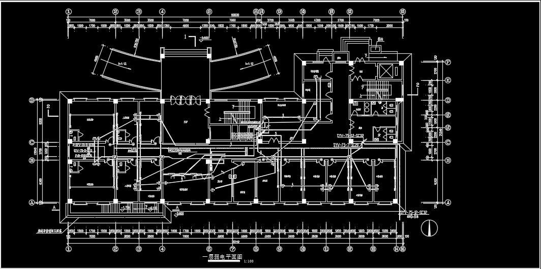
本工程通信专业主要设计内容为:护士呼叫、对讲系统;有线闭路电视室内布线系统;电话室内布线系统;网络室内布线系统。
七层医院电气弱电设计图包括:地下一层弱电平面图、一层弱电平面图、二层弱电平面图、三层弱电平面图、七层弱电平面图、系统图。
软件截图
  • 八层医院电气弱电设计图
  • 八层医院电气弱电设计图
  • 八层医院电气弱电设计图