您当前位置:首页 » 电气工程 » 电气图纸
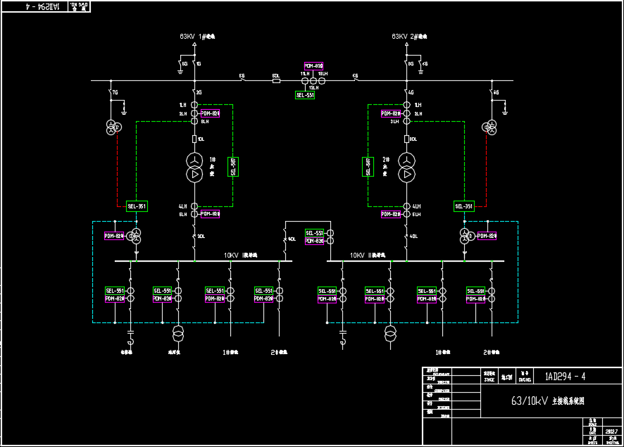
变电站自动化主接线图纸
  • 资料等级:
  • 授权方式:资料共享
  • 发布时间:2021-06-08 11:39:28
  • 资料类型:RAR
  • 资料大小:122 KB
  • 资料分类:电气工程
  • 运行环境:WinXp,Win2003,WinVista,Win ;
  • 解压密码:civilcn.com
变电站自动化主接线图纸
变电站自动化主接线图纸仅供大家参考。
软件截图
  • 变电站自动化主接线图纸
推荐下载
评论网友评论仅供网友表达个人看法,并不表明土木工程网同意其观点或证实其描述!
验证码: 验证码