Äúµ±Ç°Î»Ö㺠Ê×Ò³» µçÆø¹¤³Ì» µçÆøÍ¼Ö½
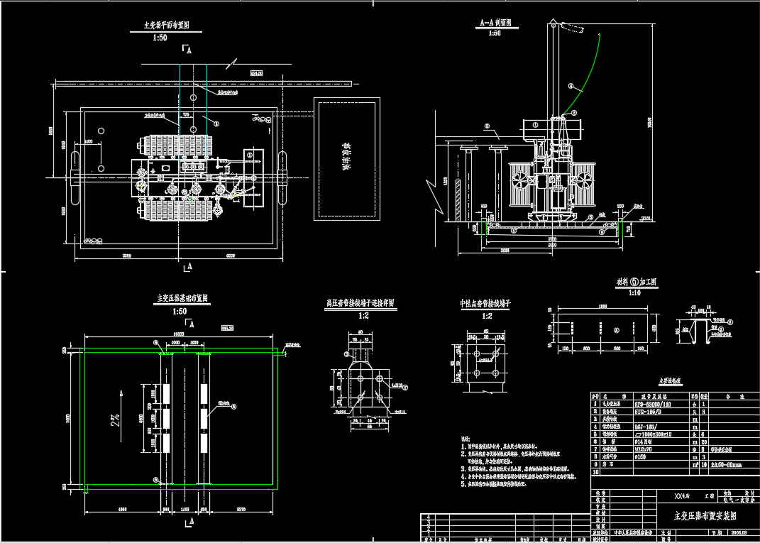
ijˮµçÕ¾SF9-63000-110±äѹÆ÷°²×°Í¼Ö½
  • ×ÊÁϵȼ¶£º
  • ÊÚȨ·½Ê½£º×ÊÁϹ²Ïí
  • ·¢²¼Ê±¼ä£º2021-06-08 15:01:34
  • ×ÊÁÏÀàÐÍ£ºRAR
  • ×ÊÁÏ´óС£º237 KB
  • ×ÊÁÏ·ÖÀࣺµçÆø¹¤³Ì
  • ÔËÐл·¾³£ºWinXp,Win2003,WinVista,Win ;
  • ½âѹÃÜÂ룺civilcn.com
ijˮµçÕ¾SF9-63000-110±äѹÆ÷°²×°Í¼Ö½
ijˮµçÕ¾SF9-63000-110±äѹÆ÷°²×°Í¼Ö½½ö¹©´ó¼Ò²Î¿¼¡£
Èí¼þ½ØÍ¼
  • ijˮµçÕ¾SF9-63000-110±äѹÆ÷°²×°Í¼Ö½