您当前位置:首页 » 电气工程 » 电气图纸
变配电室配电系统图纸
  • 资料等级:
  • 授权方式:资料共享
  • 发布时间:2021-07-05 08:13:17
  • 资料类型:RAR
  • 资料大小:180 KB
  • 资料分类:电气工程
  • 运行环境:WinXp,Win2003,WinVista,Win ;
  • 解压密码:civilcn.com
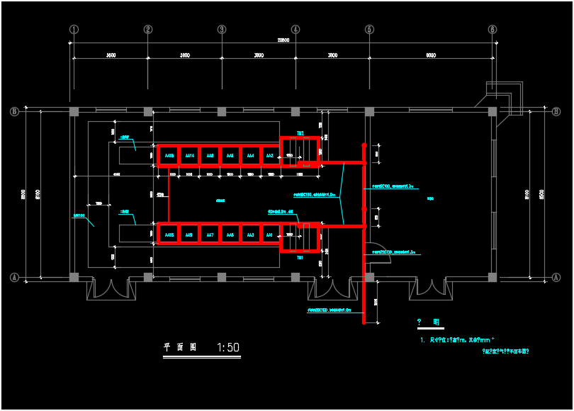
变配电室配电系统图纸
变配电室配电系统图纸包括:低压配电系统图、变配电室电力平面布置图。
软件截图
  • 变配电室配电系统图纸
  • 变配电室配电系统图纸
  • 变配电室配电系统图纸