您当前位置:首页 » 电气工程 » 电气图纸
某35KV变配电所电气设计图纸
  • 资料等级:
  • 授权方式:资料共享
  • 发布时间:2021-07-05 11:34:34
  • 资料类型:RAR
  • 资料大小:4.07 MB
  • 资料分类:电气工程
  • 运行环境:WinXp,Win2003,WinVista,Win ;
  • 解压密码:civilcn.com
某35KV变配电所电气设计图纸
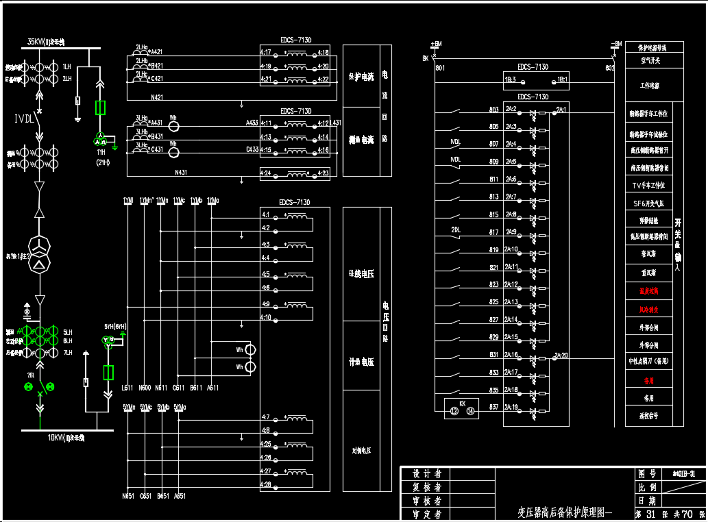
某35KV变配电所电气设计图纸包括:主接线图、10KV母线电压并列原理图、10KV母线电压并列装置端子图、10KVII段馈线线路保护原理图、35KV线路保护原理图、35KV电源进线一线路保护端子图、变压器高后备保护原理图、10KV母线分段保护原理图、主变主保护端子图、10KVI段电容馈出I保护原理图等。
软件截图
  • 某35KV变配电所电气设计图纸
  • 某35KV变配电所电气设计图纸
  • 某35KV变配电所电气设计图纸