您当前位置:首页 » 电气工程 » 电气图纸
单层框架结构配电房电气设计图纸
  • 资料等级:
  • 授权方式:资料共享
  • 发布时间:2022-03-14 08:58:34
  • 资料类型:RAR
  • 资料大小:1.39 MB
  • 资料分类:电气工程
  • 运行环境:WinXp,Win2003,WinVista,Win ;
  • 解压密码:civilcn.com
单层框架结构配电房电气设计图纸
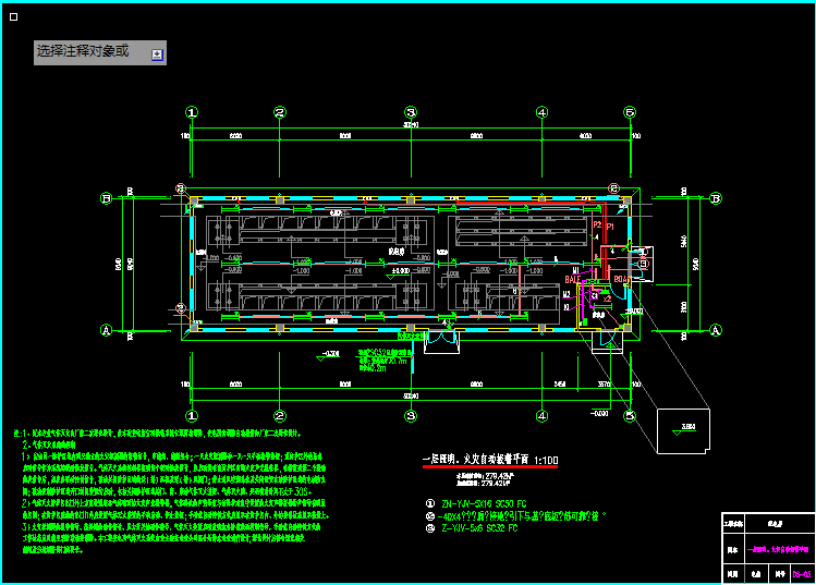
变电所内的照明系统、防雷及接地系统。变电所内变配电及其它设计不在本设计范围内。照明灯具应选用节能灯,镇流器应选用电子镇流器或者节能型电感镇流器,采用的镇流器应符合该产品能效标准的节能评价值。
单层框架结构配电房电气设计图纸包括配电箱系统图例、一层照明、火灾自动报警平面、一层应急照明平面、屋顶防雷平面、基础接地平面
软件截图
  • 单层框架结构配电房电气设计图纸
  • 单层框架结构配电房电气设计图纸
  • 单层框架结构配电房电气设计图纸