简介: 随着我国市政建设的迅速发展,城市需用水量日益增加,很多城市严重缺水,节约用水日趋重要。当前北京市对于宾馆、写字楼、机关、学校、新建生活小区等单位均要求实施中水处理。北京市是严重缺水城市,而宾馆、写字楼、等单位普遍存在大量的洗浴排水,做好这类优质杂排水的收集工作,并对其进行综合处理,实现污水资源回用(洗车、冲厕、浇花等)具有非常重要的意义。
关键字:大厦 中水
第一章 总 论
一.项目概述
随着我国市政建设的迅速发展,城市需用水量日益增加,很多城市严重缺水,节约用水日趋重要。当前北京市对于宾馆、写字楼、机关、学校、新建生活小区等单位均要求实施中水处理。北京市是严重缺水城市,而宾馆、写字楼、等单位普遍存在大量的洗浴排水,做好这类优质杂排水的收集工作,并对其进行综合处理,实现污水资源回用(洗车、冲厕、浇花等)具有非常重要的意义。
某大厦拟将淋浴及洗手盆废水,经处理后的中水主要作为大厦内的冲厕用水。
二.设计依据及原则
1、依据
《室外排水设计规范》(GBJ14-87)
《生活杂用水水质标准》(GB/T18920-2002)。
《建筑给水排水设计规范》GBJ15-88
《建筑中水设计规范》GB50336-2002
《居民小区给水排水设计规范》(CECS57-94)。
建设方提供的有关生活污水水质、水量、布局、工程图纸等基础资料
其他相关标准及规范。
2、原则
中水处理回用工程以投资省,运转费用低,占地面积小为原则。
处理系统先进,设备运行稳定可靠,维护简单、操作方便。
污水处理系统不产生二次污染源污染环境。
控制管理按处理工艺过程要求尽量考虑自控,降低运行操作的劳动强度,使污水处理站运行可靠、维护方便,提高污水处理站运行管理水平。
第二章 设计方案
一、中水处理工艺计算:
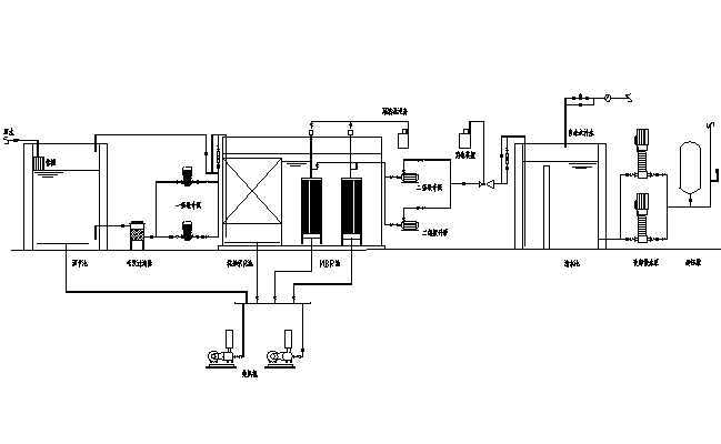
中水处理工艺流程方案选择:因本工程中水原水为淋浴排水与盥洗排水组成的优质杂排水,所以采用以物化处理为主的工艺流程(MBR).
工艺流程图
系统处理流程图
经过此工艺流程处理后的水质标准: BOD5<10,CODcr<30,SS<10
各种水水质标准、及水量
水量:60m3/d
优质杂排水水质标准 单位:mg/L
污染物 | 化学需氧量(CODCr) | 生化需氧量(BOD5) | 悬浮物(SS) |
排放浓度 | 130 | 120 | 60 |
生活杂用水水质标准 单位:mg/L
污染物 | 化学需氧量(CODCr) | 生化需氧量(BOD5) | 悬浮物(SS) |
排放浓度 | 50 | 10 | 10 |
中水处理设施处理能力:设中水处理设施运行时间采用24小时连续运行.
q=Qpy/t
q____设施处理能力(m3/h)
Qpy___中水原水量(m3/d)(60)
t_____中水设施每日设计运行时间(h)(24)
q= Qpy÷t=60÷24=2.5 m3/h
二、主要构筑物
(一)调节池计算:
本工程工艺处理设施运行时间为24小时连续运行,调节池有效容积计算如下:
Vs= Qpy*C
Vs_____调节池有效容积, m3
Qpy____中水日处理水量,m3(60)
C______调节池有效容积占日处理量的百分数%(40%)
Vs= Qpy×C=60×0.4=24 m3
调节池高设为H=2.5 m,有效水深设为H1=2m,则调节池有效面积为:
F= Vs/ H1=24/2=12 m2
调节池采用距形,则其BxL =3.5×3.6(已定),则其面积为:3.5×3.6=12.6m2>12 m2
满足要求.
并考虑在池底设置水下曝气器.
(二)反应池
1.反应池由接触氧化池和MBR池组成。
接触氧化池尺寸计算:
停留时间t=2h,有效水深2m。
V= q×t=2.5×2=5 m3
触氧化池高设为H=2.5 m,有效水深设为H2=2m,则调节池有效面积为:
F= V/ H2=5/2=2.5 m2
池采用距形,则其BxL =2.4×1.2,则其面积为: 2.4×1.2=2.88m2>2.5m2
实际停留时间T=2.88×2÷2.5=2.3h
满足要求.
并考虑在池底设置水下曝气器
2.MBR反应器选用日本久保田公司的液中膜产品。
型号: 尺寸:500mm ×1000mm×1000mm,
两套。(尺寸根据所选膜的要求确定)
(三)中水水池尺寸已定 尺寸:4200mm×2200mm×2500mm
三、主要设备
(一)格栅的设置:
本工程格栅设于格栅井内,且格栅条空隙宽度为8mm (采用一道格栅),其倾角采用75°
(二)毛发聚集器的设置:
本工程毛发聚集器设于污水泵吸水管上,毛发聚集器要求如下:
1.过滤网的有效过水面积等于连接管截面面积的2.5倍。
2.过滤网的孔径为3mm。
(三)原水提升水泵
提升水泵采用:型号:G30-25
流量Q=2.5m/h 扬程H=13m P=0.37kw 2台(一用一备)
(四)鼓风机:
采用江西百事得机械厂型号:HC-601S
供气量Qs=2.29m3/min, 风压:30KPa P=4kw
(五)自吸泵:
选用型号:TP325SS 功率:0.37kw 吸程:7-10m 2台(一用一备)
(六)中水供水泵:
选用型号:CDL8-80 Q=6.3m3/h H=80m P=3kw 2台(一用一备)
四、消毒剂计算:
1.本工程消毒剂采用次氯配钠消毒剂,采用直流式次氯酸钠发生器.
2.次氯酸钠发生器的产量计算如下式:
W=24QD/T
式中:W____次氯酸钠发生器的有效氯产量,g/h
Q____被消毒水的最大日平均时流量, m3/ h(2.5)
D____水的设计加氯量, mg/L(20)
T____发生器的工作时间, h(10)
W=24QD/T=24*2.5*20/10=120g/h
3.食盐用量的计算如下式:
G=24QDS/1000
式中:G_____食盐用量,kg/d
Q____被消毒水的最大日平均时流量, m3/ h(2.5)
D____水的设计加氯量, mg/L(20)
S____生产单位质量有效氯所消耗的食盐量, kg/kg (3.5)
G=24QDS/1000=24*2.5*20*3.5/1000=4.2 kg/d
4.盐水槽的容积计算如下式:
Vs=100G/(n*N)
式中:Vs_____盐水槽的有效容积,L
G______食盐用量,kg/d(4.2)
n ______稀盐水浓度,%(4)
N______每日配制次数,(1)
Vs=100G/(n*N)=100*4.2/(4*1)=105L
5.次氯酸钠贮液槽容积计算如下式(有效容积):
Act=QDt/C
式中:Act_____贮液槽的有效容积,L
C______次氯酸钠溶液的有效氯浓度, g/ L(8)(或按产品说明书)
t_______贮液时间, h. t=24-T=24-10=14 h (T为发生器工作时间).
Q____被消毒水的最大日平均时流量, m3/ h(2.5)
D____水的设计加氯量, mg/L(20)
Act=QDt/C=2.5*20*14/8=87.5L
6.稀盐水(4%)的配制:由溶盐池配制浓度15%左右的浓盐水,静止沉淀后,用比重计测定其浓度,再配制成4%浓度的需要量,启动盐水泵将一定体积的浓盐水送入盐水槽中,然后加入清水使其成为需要浓度的稀盐水.
7.配制105 L4%浓度的稀盐水所需浓盐水体积计算:
(1)浓盐水浓度计算如下式:
Cs=а*Ds-b
式中:Cs_____盐水的质量百分比浓度,%
Ds_____盐水的比重, kg/L(1.1)(应由实测数据为准)
а.b _____系数,常温下取а=151.7, b=151.83
Cs=а*Ds-b=151.7*1.1-151.83=15%
(2)配制105 L4%浓度的稀盐水所需浓盐水体积:V=4*105/15=58L.
8. 本工程消毒液投放采用水射器投药方式,次氯酸钠消毒工艺流程见下图
次氯酸钠消毒工艺流程图
1____溶盐池 2____塑料泵 3____盐水槽 4____次氯酸钠发生器
5____次氯酸钠贮液槽 6____漏斗 7____水射器 8____管道混合器
9____清水池 10____回用水泵




