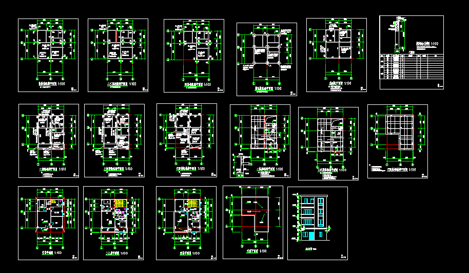
四层农村住宅结构施工图纸
  • 资料等级:
  • 授权方式:资料共享
  • v发布时间:2017-07-04
  • 资料类型:RAR
  • 资料大小:273 KB
  • 资料分类:建筑图纸
  • 运行环境:WinXp,Win2003,WinVista,Win ;
  • 解压密码:civilcn.com
四层农村住宅结构施工图纸包括首层柱配筋平面图、二三层柱配筋平面图、四层柱配筋平面图、挖孔桩基础平面图、基础梁平面图、三四层板结构平面图天面层板结构平面图、二层板结构平面图、正立面图、天面平面图等