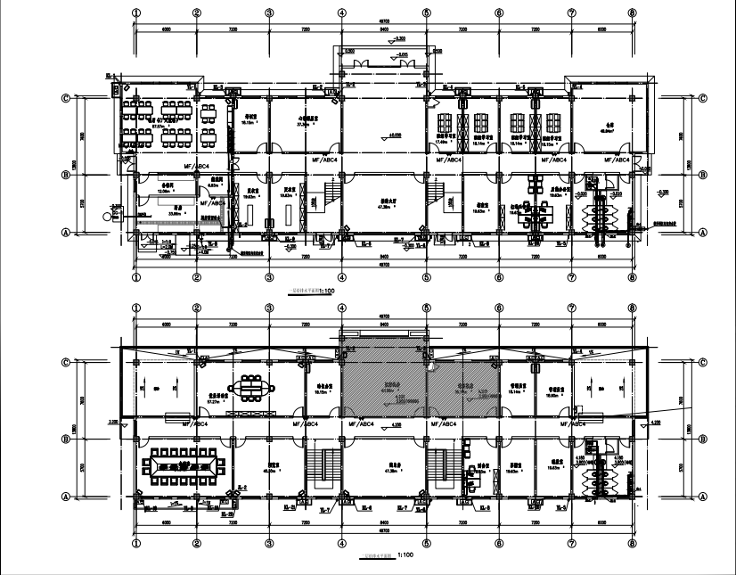
总建筑面积:1391.3m2,建筑基底面积:748.43m,一层建筑面积:748.43m,二层建筑面积:642.88m,建筑层数:二层,建筑高度:9.675m,设计使用年限:50年。建筑工程等级:三级,耐火等级:二级,抗震设防烈度:7度,抗震等级:三级,结构类型:框架结构。房间包括办公、学习室、餐厅等,为多层建筑。
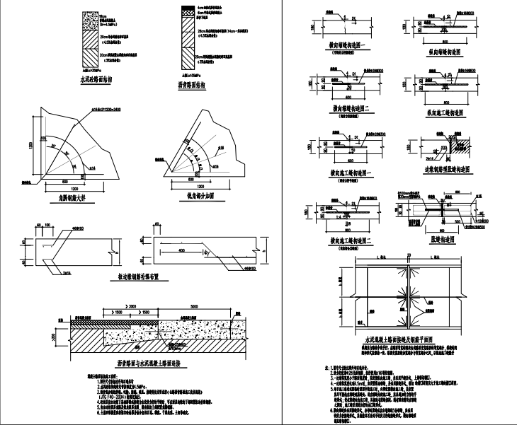
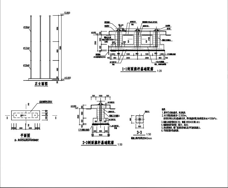
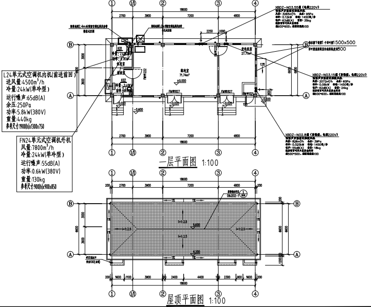
二层框架结构办公楼全套施工图纸,包括:总平面图、平面图、立面图、剖面图、大样图、场地总图、场第一次整平图、旗杆结构图、围墙结构图、给排水平面图、系统原理图、照明平面图、配电平面图、空调通风平面图等













