工程规划用地面积32853.75㎡,总建筑面积102991.59㎡,其中住宅建筑面积25256.22㎡,商业建筑面积60589.42㎡,架空层面积㎡,地下配套设施面积(地下车库及设备房)15748.84㎡,不计容建筑面积16471.50㎡,建筑基底面积15320.52㎡。本次初步设计内容含A地块地下、地上全部建筑及B地块B1#栋、B2#栋及B1#栋、B2#栋下部地下室。设计使用设计使用年限为50年;A3#建筑类别为一类高层公共建筑,建筑防火等级为一级;其他4层商业为二类建筑,防火等级为二级。地下室防火等级为一级。 地下室顶板防水等级为II级,建筑屋面为倒置式I级,无种植顶板屋面。结构类型:A3#楼为钢筋混凝土剪力墙结构,其余为框架结构。
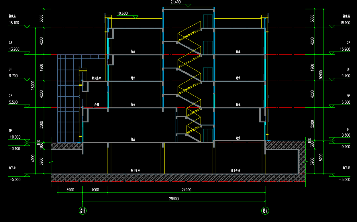
多层框架结构商住楼建筑施工图纸包括了A2#楼首层平面图、A2#楼二层平面图、A2#楼屋顶层平面图、A2#楼剖面图、A2#楼楼梯大样图、A2#楼墙身大样图、A2#楼卫生间大样图、A2#楼门窗大样图、A4#楼首层平面图、A4#楼二层平面图、A4#楼屋顶层平面图、A4#楼剖面图、A4#楼楼梯大样图、地下室平面图等。











