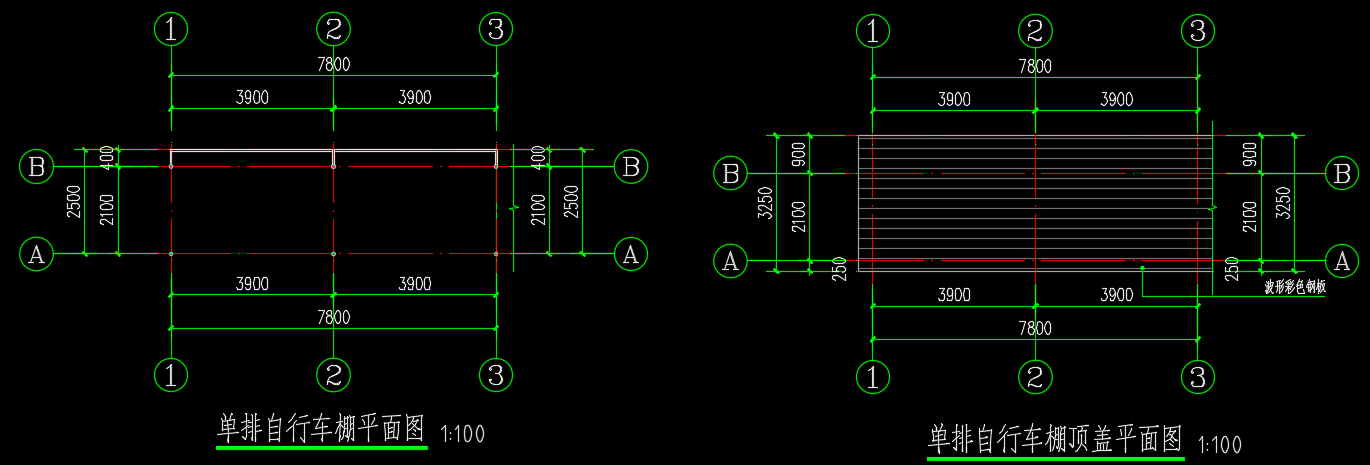
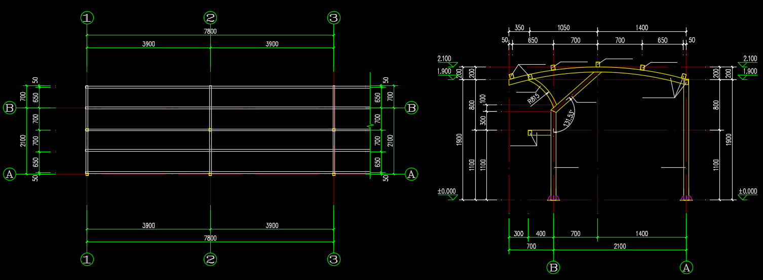
建筑功能:车棚。建筑主体高度:2.19米(室外地坪至棚顶面)。本工程总面积:516.03平方米(顶棚投影面积)。
小区电动停车棚及充电设施施工图纸(含结构、电气)包括了总平面示意图、单排自行车棚平面图、单排自行车棚顶盖平面图、双排自行车棚顶盖平面图、双排自行车棚平面图、电动车停车位平面图、地坪做法详图、双排自行车棚侧立面图、单排自行车棚侧立面图、单排自行车棚配电侧立面图、电动车停车位配电平面图、自行车棚配电正立面图等。




RAR