ijÉÌÎñ°ì¹«Â¥¼°È¹·¿¿òͲ½á¹¹Ê©¹¤Í¼Ö½£¨PDF¸ñʽ£©
  • ×ÊÁϵȼ¶£º
  • ÊÚȨ·½Ê½£º×ÊÁϹ²Ïí
  • ·¢²¼Ê±¼ä£º2020-07-22
  • ×ÊÁÏÀàÐÍ£ºRAR
  • ×ÊÁÏ´óС£º667 MB
  • ×ÊÁÏ·ÖÀࣺ½¨Öþͼֽ
  • ÔËÐл·¾³£ºWinXp,Win2003,WinVista,Win ;
  • ½âѹÃÜÂ룺civilcn.com
ijÉÌÎñ°ì¹«Â¥¼°È¹·¿¿òͲ½á¹¹Ê©¹¤Í¼Ö½£¨PDF¸ñʽ£©
ÌáÈ¡Â룺oxb1

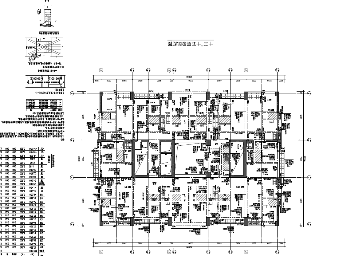
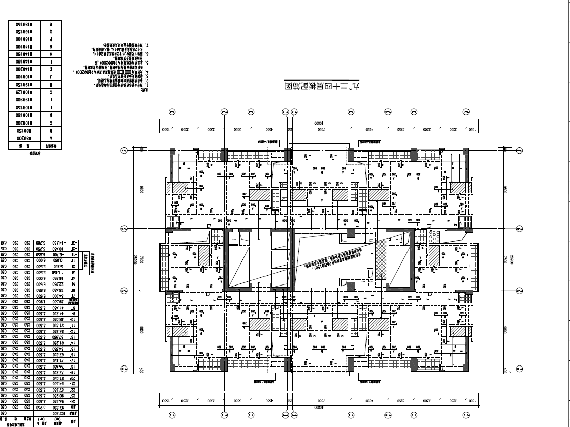
ÏîÄ¿·ÖÈýÆÚ¿ª·¢£¬×ÜÓõØÃæ»ýÔ¼106021.7ƽÃ×£¬ÊµÓõØÃæ»ý86765.9ƽÃס£ ±¾´ÎÉè¼ÆÎªÈýÆÚ£¬ÓÉ7ºÅÂ¥~ 10ºÅÂ¥ËͰÉÌÎñ°ì¹«Â¥¼°ÆäÉÌҵȹ·¿ÁË¡¢ÉÌҵȹ·¿4ºÍÉÌҵȹ·¿5×é³É¡£
±¾ÏîÄ¿ÉÌҵȹ¥6²ã¾Ö²¿7²ã£¬¸ß¶È34Ã×¾Ö²¿39.5Ã×£¬7ºÅÉÌÎñ°ì¹«Â¥¸ß97.60Ãס¢8ºÅÉÌÎñ°ì¹«Â¥94 40Ãס¢9ºÅÉÌÎñ°ì¹«Â¥96. 40Ãס¢10ºÅÉÌÎñ°ì¹«Â¥81.70Ãס£
ʹÓÃÄêÏÞ¼°°²È«µÈ¼¶
½á¹¹Éè¼ÆÊ¹ÓÃÄêÏÞ: 50Äê;
½¨Öþ½á¹¹°²È«µÈ¼¶:¶þ¼¶¡£
»ù´¡°²È«µÈ¼¶:¶þ¼¶¡£
µØ»ù»ù´¡Éè¼ÆµÈ¼¶:¼×¼¶;
ijÉÌÎñ°ì¹«Â¥¼°È¹·¿¿òͲ½á¹¹Ê©¹¤Í¼Ö½°üÀ¨µØÏÂÊÒ×®»ù¶¨Î»×éºÏͼ¡¢µØÏÂÊÒ×®»ù¶¨Î»Í¼(Ò»¶Î)¡¢µØÏÂÈý²ãµ×°å(×éºÏ)Æ½ÃæÍ¼¡¢µØÏÂÈý²ãµ×°å½á¹¹Æ½ÃæÍ¼¡¢µØÏÂÈý²ãµ×°åÅä½î(×éºÏ)Æ½ÃæÍ¼¡¢µØÏÂÈý²ãµ×°åÅä½îÆ½ÃæÍ¼¡¢µ×°å¼°³Ð̨´óÑùͼ(Èý)¡¢µØÏÂÈý²ãǽÖù¶¨Î»×éºÏͼ¡¢µØÏÂÈý²ã(Ò»¶Î)ǽÖù¶¨Î»Í¼¡¢µØÏ¶þ²ãǽÖù¶¨Î»×éºÏͼ¡¢µØÏ¶þ²ã(Ò»¶Î)ǽÖù¶¨Î»Í¼¡¢µØÏÂÒ»²ã×éºÏǽÖù¶¨Î»Í¼¡¢µØÏÂÒ»²ã(Ò»¶Î)ǽÖù¶¨Î»Í¼¡¢µØÏÂÈý²ãǽÖù´óÑùͼ¡¢µØÏ¶þ²ãǽÖùÅä½îͼ¡¢µØÏÂÒ»²ãǽÖùÅä½îͼ¡¢µØÏÂÊÒÍâǽÅä½îͼ¡¢µØÏ¶þ²ã×éºÏ½á¹¹Æ½ÃæÍ¼¡¢µØÏ¶þ²ã(Ò»¶Î)½á¹¹Æ½ÃæÍ¼¡¢µØÏÂÒ»²ã×éºÏ½á¹¹Æ½ÃæÍ¼¡¢µØÏÂÒ»²ã(Ò»¶Î)½á¹¹Æ½ÃæÍ¼
Èí¼þ½ØÍ¼
  • ijÉÌÎñ°ì¹«Â¥¼°È¹·¿¿òͲ½á¹¹Ê©¹¤Í¼Ö½£¨PDF¸ñʽ£©
  • ijÉÌÎñ°ì¹«Â¥¼°È¹·¿¿òͲ½á¹¹Ê©¹¤Í¼Ö½£¨PDF¸ñʽ£©
  • ijÉÌÎñ°ì¹«Â¥¼°È¹·¿¿òͲ½á¹¹Ê©¹¤Í¼Ö½£¨PDF¸ñʽ£©
  • ijÉÌÎñ°ì¹«Â¥¼°È¹·¿¿òͲ½á¹¹Ê©¹¤Í¼Ö½£¨PDF¸ñʽ£©
  • ijÉÌÎñ°ì¹«Â¥¼°È¹·¿¿òͲ½á¹¹Ê©¹¤Í¼Ö½£¨PDF¸ñʽ£©
  • ijÉÌÎñ°ì¹«Â¥¼°È¹·¿¿òͲ½á¹¹Ê©¹¤Í¼Ö½£¨PDF¸ñʽ£©