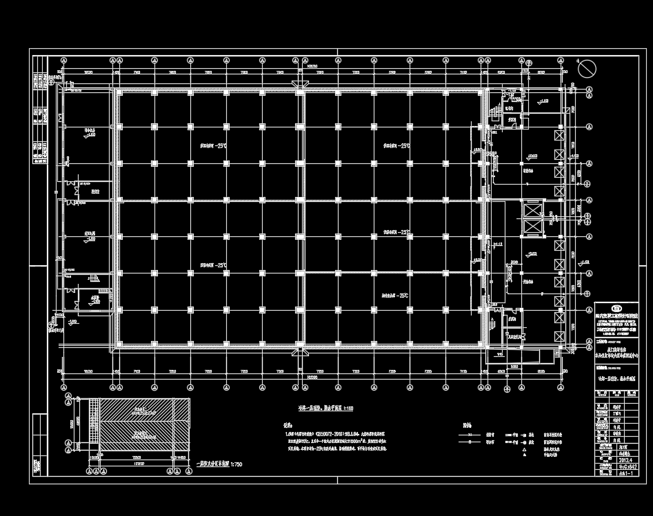
总建筑面积 10203.68m2,占地面积 5409.25m2;建筑层数:冷库地上2层,一层层高7.0m,二层层高5.5m;制冷机房为1层,层高为7.3m;变配电间为2层,一层层高为5.4m,二层层高为3.3m;水泵房地上1层,地上层高为5.4m,地下层高为3.8m。建筑防火分类:冷库库房属于丙-2类库房;制冷机房和变配电室分别属于乙类和丙类厂房 ;建筑耐火等级:冷库(含制冷机房、变配电室、穿堂、水泵房等)均为二级 ;屋面防水等级:I级;结构形式:冷藏间、穿堂均采用钢筋混凝土框架结构体系。设计使用年限:50年;抗震设防标准按7度设计,设计基本地震加速度为0.15g
设计范围:
1、冷库:低温冷藏间、穿堂和站台;
2、制冷机房、变配电间及附属用房;
3、厂区总平面图
墙体工程
1 冷库冷藏间墙体为370厚烧结实心砖,保温材料采用230厚聚氨酯现场喷涂;
2 冷库穿堂、制冷机房及变配电外围护墙采用加气混凝土砌块;
3 墙体防潮层:在室内地坪下约60处做20厚1:2水泥砂浆内加3~5%防水剂的墙身防潮层(在此标高为钢筋混凝土构造,或下为砌石构造时可不做)当室内地坪变化处防潮层应重叠,并在高低差埋土一侧墙身做20厚1:2水泥砂浆防潮层,如埋土侧为室外,还应刷1.5厚聚氨酯防水涂料(或其它防潮材料);
4 预留洞的封堵:混凝土墙留洞的封堵见结施,其余砌筑墙留洞待管道设备安装完毕后,用C15细石混凝土填实;防火墙上留洞的封堵为非燃烧材料。冷间墙上穿洞封堵应用发泡聚氨酯做好防冷桥处理。
防水工程
1 地下室防水工程执行《地下工程防水技术规范》和地方的有关规程和规定;
2 防水混凝土的施工缝、穿墙管道预留洞、转角、坑槽、后浇带等部位建筑构造做法应按《地下防水工程质量验收标准》处理。
3 地下泵房防水等级为III级,设防做法为1.5厚单组份聚氨酯防水涂料。
二层钢筋混凝土框架结构冷藏配送中心施工图纸,包括:总平面图、通风平面图、平面图、立面图、剖面图、顶板配筋图、管线综合图、消防、排水平面图、消防、排水系统图、给排水平面图、给排水系统图、动力配电平面图、照明平面图、通风平面布置图等









