内容:
施工准备
材料、机具准备:胶合板:规格1220×2440×15mm;方木:规格50×100 mm 、100×100mm;钢管:Ф48,壁厚3.0 mm ;穿墙螺栓:M14;三段式止水螺杆:400、350、300mm、250mm、200mm;M14通丝螺杆;十字扣件、转卡、水溶性脱模剂、U托、3形卡、止水片等。机具电锯、平刨各3台,电焊机3台,手持电锯、电钻各45台。
作业条件
基础、墙、柱钢筋已绑扎完毕,水电管线及预埋件已安装就位,钢筋保护层垫块已绑好、垫好,并办完相关隐检手续。
放好轴线、模板边线、500mm(或300mm)控制线、水平控制标高线。
模板加固所需要的地锚已埋好。
筏板模板安装施工工艺
工艺流程:模板清理→筏板模板安装→安装螺杆→横竖背楞加固→平整度、验收
导墙模板工艺流程:焊接固定钢筋→安装模板→安装螺杆→横竖背楞加固→平整度、验收
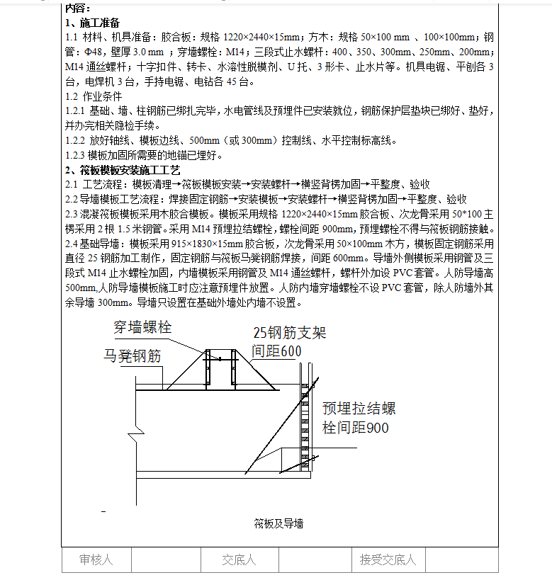
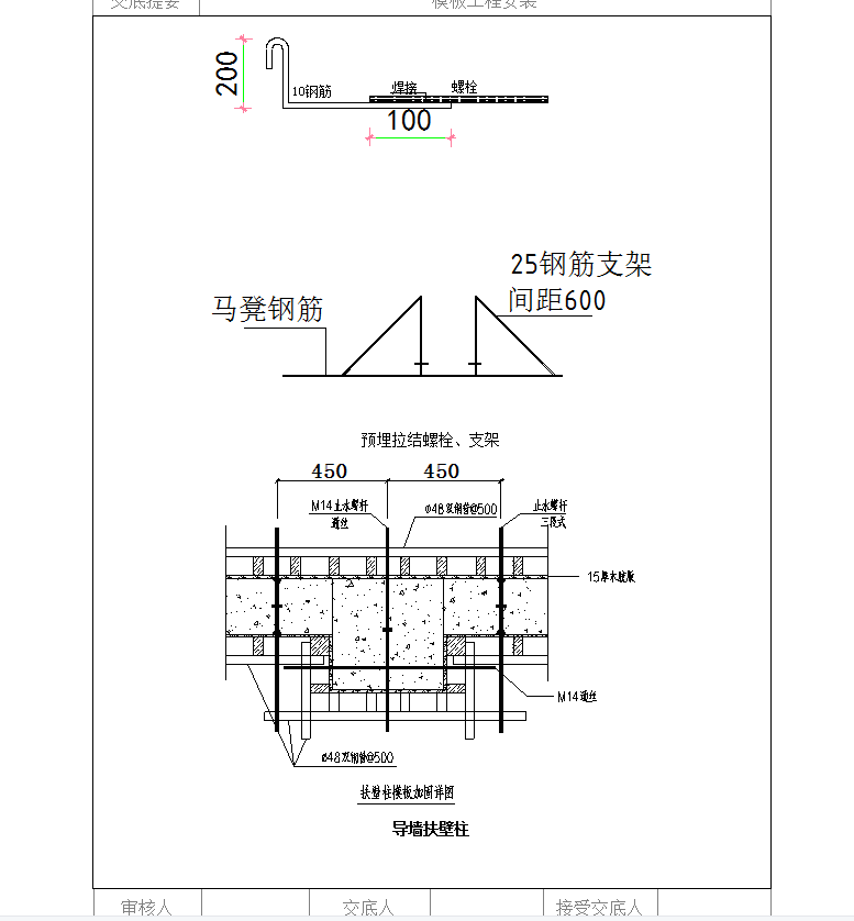
混凝筏板模板采用木胶合模板。模板采用规格1220×2440×15mm胶合板、次龙骨采用50*100主楞采用2根1.5米钢管。采用M14预埋拉结螺栓,螺栓间距900mm,预埋螺栓不得与筏板钢筋接触。
基础导墙:模板采用915×1830×15mm胶合板,次龙骨采用50×100mm木方,模板固定钢筋采用直径25钢筋加工制作,固定钢筋与筏板马凳钢筋焊接,间距600mm。导墙外侧模板采用钢管及三段式M14止水螺栓加固,内墙模板采用钢管及M14通丝螺杆,螺杆外加设PVC套管。人防导墙高500mm,人防导墙模板施工时应注意预埋件放置。人防内墙穿墙螺栓不设PVC套管,除人防墙外其余导墙300mm。导墙只设置在基础外墙处内墙不设置。







