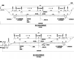
岩石挖方边坡高度大于30m、土质挖方边坡高度大于20m 的挖方路段均视为深挖路堑,深挖路堑开挖后易沿结构面产生卸荷变形开裂和爆破损伤带,危及边坡整体稳定,故需根据边坡设计坡度、岩层破碎及裂隙发育程度等进行防护加固设计。本合同段主线深挖路堑主线共有392.6m/2 段,最大边坡高度46.4m;通江东互通内深挖路堑主线共有共有295m/1 段,最大边坡高度32.9m。
高边坡设计采用信息化动态设计理念。设计时根据岩土体类型、成因、性状、风化程度、主要结构面、气象、水文地质条件以及必要的岩土体物理力学指标,采用工程地质类比法、极限平衡法以及数值分析法等进行综合分析与稳定性评价,对不同的边坡采用有针对性的处治方案。
80kmh双向四车道高速公路道路施工图纸包括说明、路基设计表、边沟(排水沟)设计表、路基标准横断面图、一般路基设计图、分离式路基连接部图、分
离式路基标高图、路基横断面设计图、超高方式图、耕地填前夯压实数量表、挖淤泥排水数量表、高填深挖路
基工程数量表、高填深挖路基设计图







