您当前位置:首页 » 路桥工程 » 路桥图纸 » 桥梁图纸
17座桥梁安全防护设施提升工程设计施工图
  • 资料等级:
  • 授权方式:资料共享
  • 发布时间:2022-03-21 08:26:26
  • 资料类型:RAR
  • 资料大小:23.1 MB
  • 资料分类:路桥图纸
  • 运行环境:WinXp,Win2003,WinVista,Win ;
  • 解压密码:civilcn.com
17座桥梁安全防护设施提升工程设计施工图
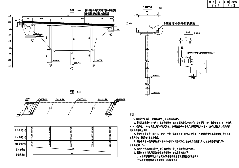
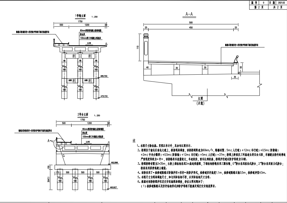
桥梁位于xx 014 乡道上,该路段为三级公路,设计速度 20km/h,桥位段道路限速 20km/h;桥梁平面位于直线上,桥梁全长 72.0m,桥梁跨径布置 14+2*17+14m;桥梁上部结构为混凝土现浇箱梁;下部结构桥台采用重力式桥台,桥墩采用柱式墩;桥面采用水泥混凝土铺装,桥面布置:1.0m(检修道及路缘石)+7.0m(行车道)+1.0m(检修道及路缘石)=9.0m,桥面两侧采用了“检修道路缘石防撞护栏+栏杆”的防护形式,检修道总宽度为 1.0m,外侧路缘石高 0.35m,检修道净 宽为 0.61m,根据现场调查该桥位于江北机场附近,车辆通行需求较大。目前,桥梁在正常使用中。
软件截图
  • 桥梁安全防护,防护设施提升,桥梁施工图
  • 桥梁安全防护,防护设施提升,桥梁施工图
  • 桥梁安全防护,防护设施提升,桥梁施工图