¸Ö°å׮ΧÑßÊ©¹¤Í¼Ö½(PDF¸ñʽ£©
  • ×ÊÁϵȼ¶£º
  • ÊÚȨ·½Ê½£º×ÊÁϹ²Ïí
  • ·¢²¼Ê±¼ä£º2022-04-20 16:33:48
  • ×ÊÁÏÀàÐÍ£ºRAR
  • ×ÊÁÏ´óС£º2.42 MB
  • ×ÊÁÏ·ÖÀࣺ·ÇÅͼֽ
  • ÔËÐл·¾³£ºWinXp,Win2003,WinVista,Win ;
  • ½âѹÃÜÂ룺civilcn.com
¸Ö°å׮ΧÑßÊ©¹¤Í¼Ö½(PDF¸ñʽ£©
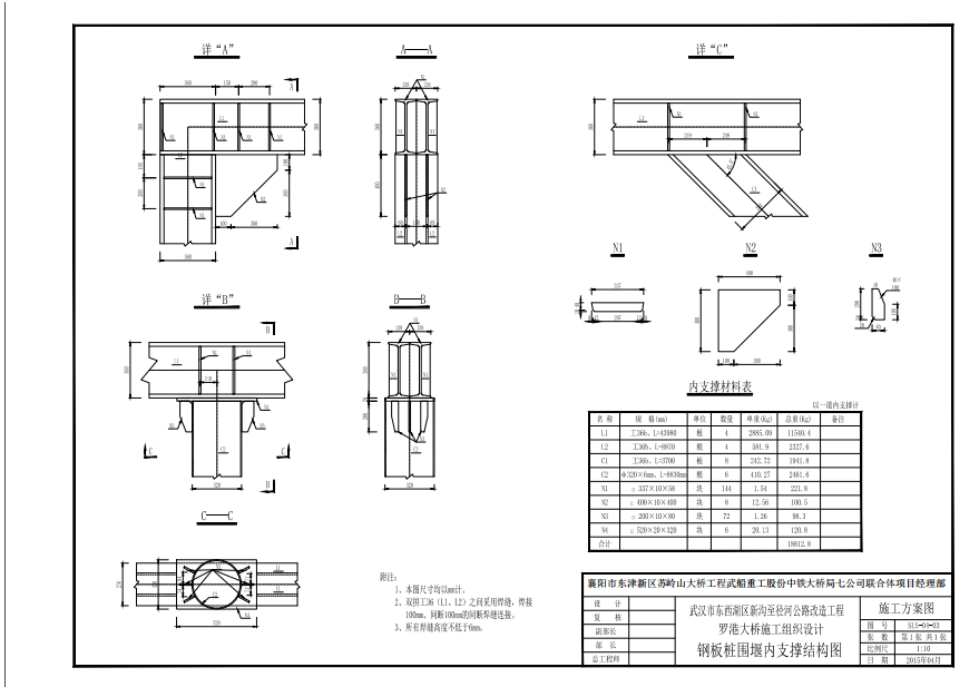
¸Ö°å׮ΧÑßÊ©¹¤Í¼Ö½°üÀ¨¶Õ³Ð̨ΧÑßÁ¢ÃæÍ¼¡¢¶Õ³Ð̨ΧÑ߯½ÃæÍ¼¡¢³Ð̨ΧÑß²àÃæÍ¼¡¢¸Ö°å׮ΧÑßÄÚÖ§³Å½á¹¹Í¼
Èí¼þ½ØÍ¼
  • ¸Ö°å׮ΧÑß,ΧÑßÊ©¹¤Í¼
  • ¸Ö°å׮ΧÑß,ΧÑßÊ©¹¤Í¼
  • ¸Ö°å׮ΧÑß,ΧÑßÊ©¹¤Í¼