Äúµ±Ç°Î»Ö㺠Ê×Ò³» ůͨ¿Õµ÷» ůͨͼֽ
Îå²ãÒ½¼¼²¡·¿Â¥Í¨·çÆ½ÃæÍ¼Ö½£¨º¬¼ÆËãÊ飩
  • ×ÊÁϵȼ¶£º
  • ÊÚȨ·½Ê½£º×ÊÁϹ²Ïí
  • ·¢²¼Ê±¼ä£º2020-07-02 09:28:23
  • ×ÊÁÏÀàÐÍ£ºRAR
  • ×ÊÁÏ´óС£º1.17 MB
  • ×ÊÁÏ·ÖÀࣺůͨ¿Õµ÷
  • ÔËÐл·¾³£ºWinXp,Win2003,WinVista,Win ;
  • ½âѹÃÜÂ룺civilcn.com
Îå²ãÒ½¼¼²¡·¿Â¥Í¨·çÆ½ÃæÍ¼Ö½£¨º¬¼ÆËãÊ飩
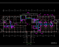
Îå²ãÒ½¼¼²¡·¿Â¥Í¨·çÆ½ÃæÍ¼Ö½£¬°üÀ¨£ºÒ½¼¼¡¢²¡·¿Â¥Í¨·çÆ½ÃæÍ¼¡¢É豸²ãͨ·çÆ½ÃæÍ¼¡¢Ò½¼¼¡¢²¡·¿Â¥Îݶ¥²ãͨ·çÆ½ÃæÍ¼¡¢Ò½¼¼¡¢²¡·¿Â¥Ò»²ã²Éů¸É¹ÜÆ½ÃæÍ¼¡¢Ò½¼¼¡¢²¡·¿Â¥²Éůϵͳͼ¡¢Ò½¼¼¡¢²¡·¿Â¥Ë®Á¦¼ÆËã¼òͼ
Èí¼þ½ØÍ¼
  • Îå²ãÒ½¼¼²¡·¿Â¥Í¨·çÆ½ÃæÍ¼Ö½£¨º¬¼ÆËãÊ飩
  • Îå²ãÒ½¼¼²¡·¿Â¥Í¨·çÆ½ÃæÍ¼Ö½£¨º¬¼ÆËãÊ飩
  • Îå²ãÒ½¼¼²¡·¿Â¥Í¨·çÆ½ÃæÍ¼Ö½£¨º¬¼ÆËãÊ飩
  • Îå²ãÒ½¼¼²¡·¿Â¥Í¨·çÆ½ÃæÍ¼Ö½£¨º¬¼ÆËãÊ飩
  • Îå²ãÒ½¼¼²¡·¿Â¥Í¨·çÆ½ÃæÍ¼Ö½£¨º¬¼ÆËãÊ飩
  • Îå²ãÒ½¼¼²¡·¿Â¥Í¨·çÆ½ÃæÍ¼Ö½£¨º¬¼ÆËãÊ飩