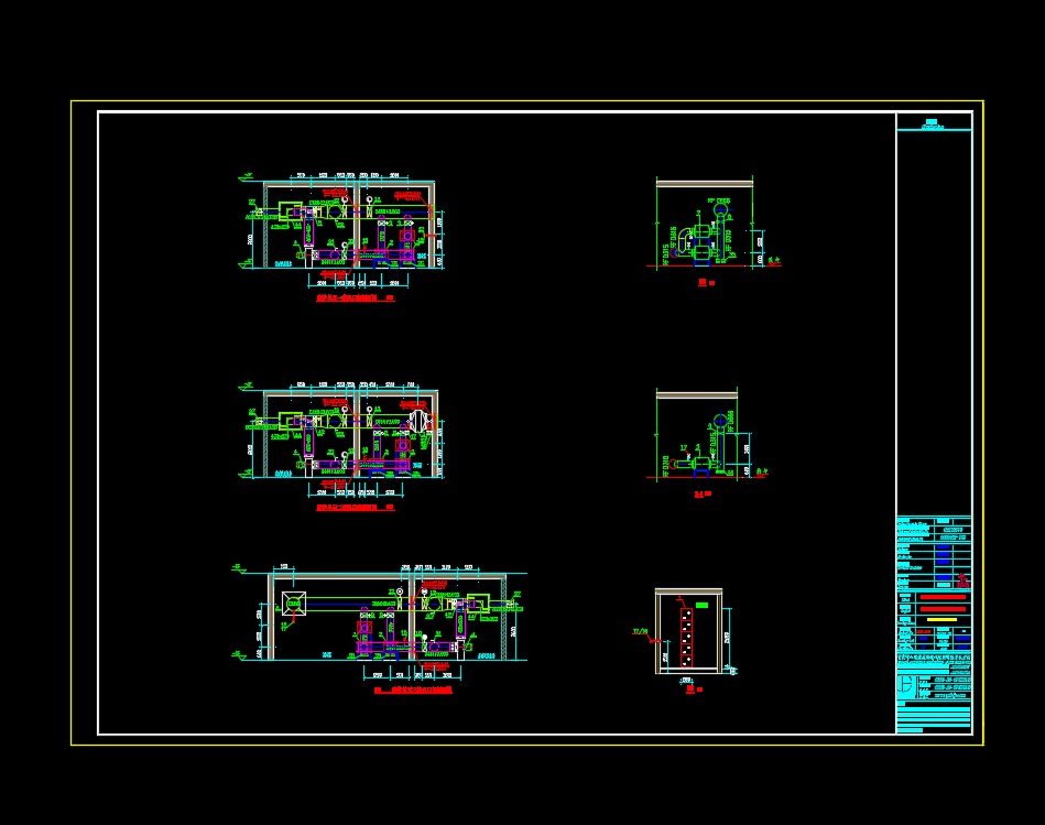
本工程为XX会展总部基地项目防空地下室,位于XX,防空地下室设置在车库负六层,建筑面积5341.14m,平时功能为车库,战时作为二等人员掩蔽所;划分为3个防护单元,掩蔽面积3420m,掩蔽总人数为3420人;二等人员掩蔽所防护等级为核5级、常5级,防化级别为丙级,早期核辐射防护剂量限值0.2Gy.
设计范围:
1、防空地下室二等人员掩蔽所战时通风设计。
2、防空地下室(地下车库)平时通风系统平战转换设计。
会展总部基地项目人防通风施工图纸,包括:平时通风平战转换图、战时通风平面图、战时通风原理图、进风口部通风剖面图、人防设备安装大样图







