项目名称:XX区XX等地块R2二类居住用地、A61机构养老用地、A33基础教育用地项目, 项目用地位于XX市XX区,总建设用地面积:44390.50平方米,总建筑面积:144459.20平方米,地上总建筑面积:71025.00平方米,地下总建筑面积:73434.20平方米,本地块地上共包括17栋住宅楼、2栋配套服务用房及1#地下汽车库。
设计范围:
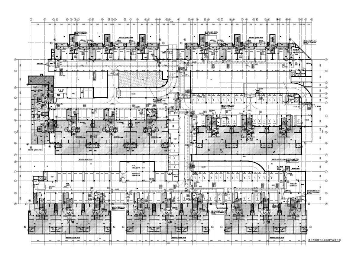
包括建筑内供暖、空调、通风及防排烟全套施工图。




RAR