1、工程名称:XX区XX镇镇中心区C1-02、C1-03、C1-04等地块居住、商业(配建限价商品房)(原板桥四期)项目。
2、建设地点:项目位于XX市XX区XX中心区
3、结构形式:框架结构.
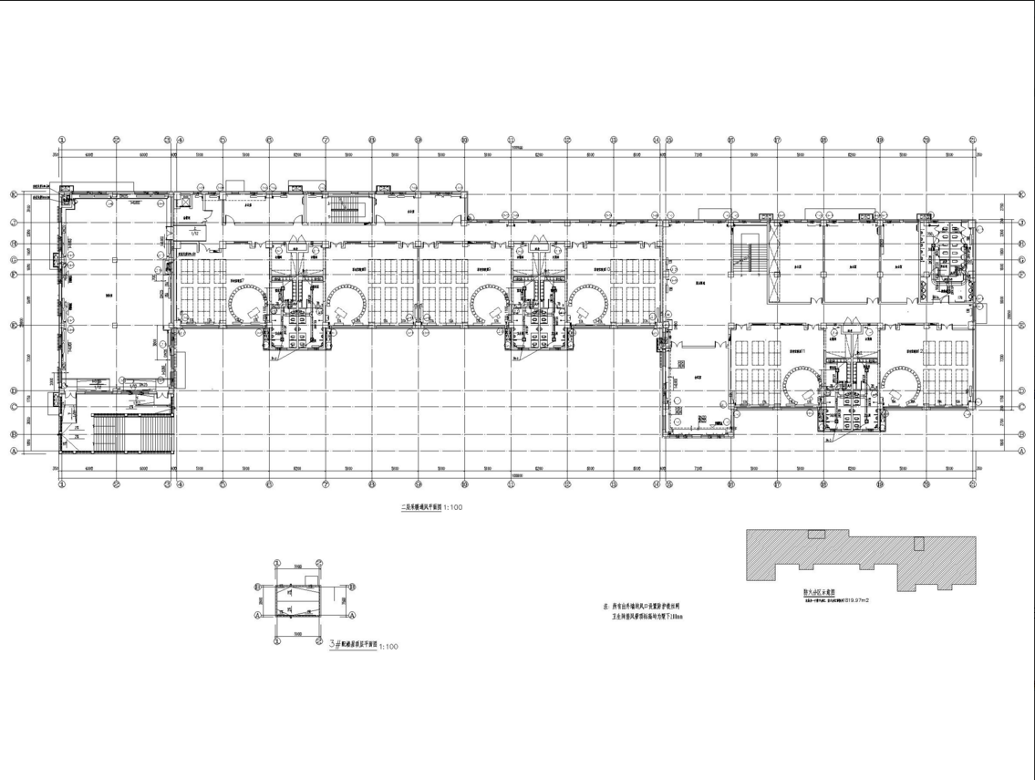
4、建筑类别及防火等级:本工程为幼儿园建筑,地上耐火等级为二级。设计合理使用年限为50年。
5、经济技术指标:总建筑面积:5200m2;地上(1轴~3轴)两层,一层层高3.9m,二层层高4.6m;地上(4轴~21轴)三层,层高均为3.6m。
设计范围:
本工程的设计范围包括:幼儿园的采暖通风设计;厨房通风仅预留条件,施工图二次设计。







