首页
论文
毕业
图纸
知识
方案
全部
建筑
结构
水利
园林
建筑设计
结构设计
水利工程
给水排水
园林工程
暖通空调
环境保护
路桥工程
岩土工程
工程造价
CAD教程
注册考试
电气工程
暖通论文
暖通图纸
暖通软件
暖通施工
施工交底
工艺工法
毕业设计
实习报告
工作总结
常用表格
暖通规范
暖通书籍
暖通课件
暖通图集
暖通空调知识
您当前位置:
首页
»
暖通空调
»
暖通图纸
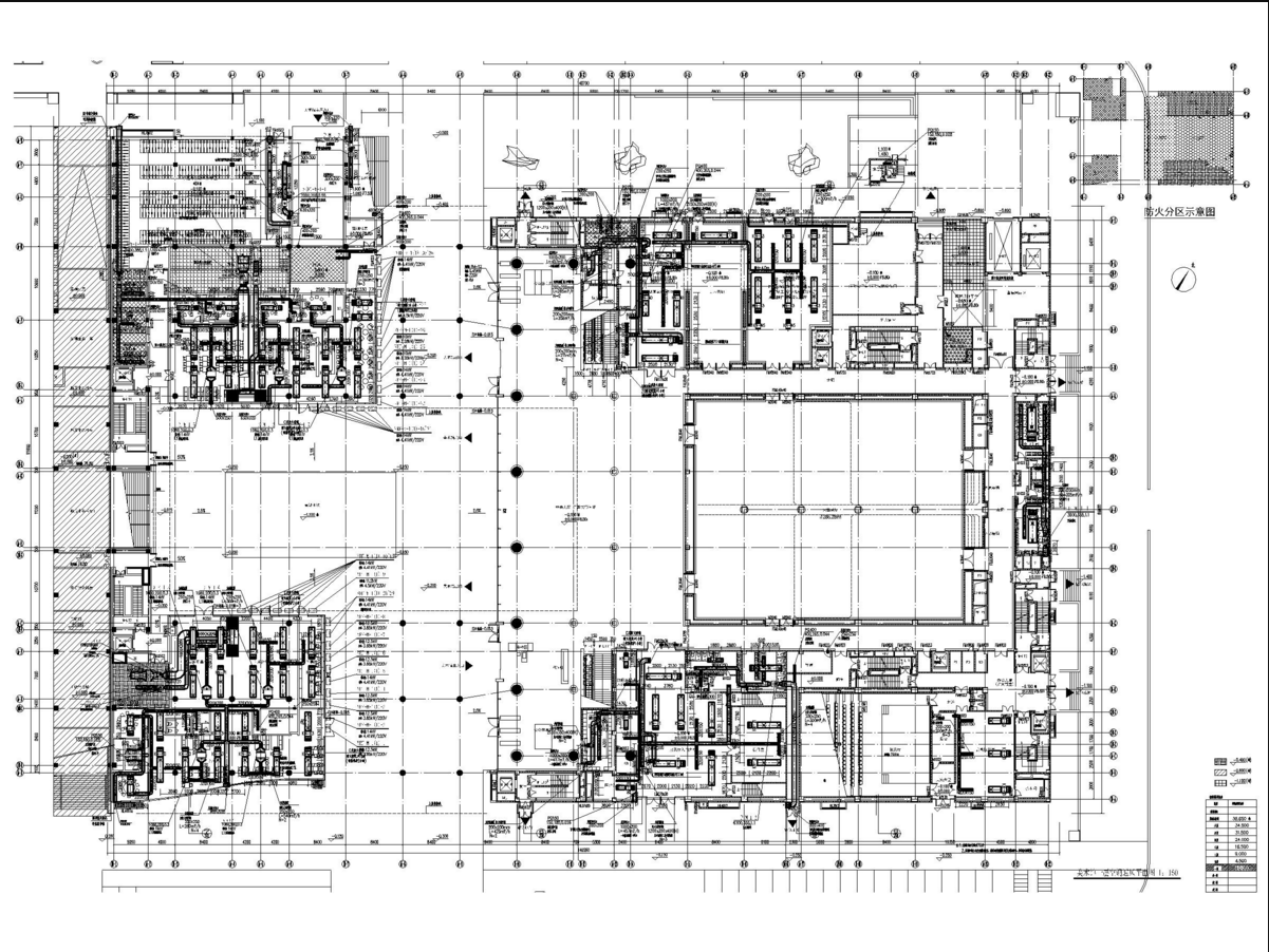
6层美术馆空调通风及防排烟设计图纸
资料等级:
授权方式:
资料共享
发布时间:
2021-01-26 13:39:36
资料类型:
RAR
资料大小:
78.3 MB
资料分类:
暖通空调
运行环境:
WinXp,Win2003,WinVista,Win ;
解压密码:
civilcn.com
软件介绍
充值VIP
下载帮助
下载地址
本项目为XX美术馆项目,美术馆地上6层,为美术馆各类展厅,美术馆总建筑面积65660平方米(地上36178/地下29482)。
设计范围:
美术馆部分的空调、通风、防排烟系统设计。
软件截图
下载地址
充值VIP
下载帮助
立即下载
土木工程网提醒您:本资料下载权限为
(普通会员)
点击进入下载6层美术馆空调通风及防排烟设计图纸
(需要6积分)
推荐下载
图纸
产业孵化园通风防排烟设计图纸(含招标文件
施工
某中心发热电缆地板采暖工程施工组织设计 1
毕业
十六层框架结构住宅楼室内采暖系统设计 45P
课件
重点解读《通风与空调工程施工质量验收规范
表格
空调与通风施工质量资料 219P
CAD
AutoCAD 2022简体中文版
相关下载
五星级酒店办公楼空调通风及防排烟设计图
产业园宿舍通风及防排烟设计图(含招标文)
高层办公楼空调通风及防排烟设计图纸
十二层学生宿舍楼通风及防排烟设计图
六层美术馆给排水消防系统设计图纸
6层美术馆厨房燃气设计图纸
5层酒店部分空调通风及防排烟设计图纸
26层住宅楼通风防排烟设计图纸
评论
网友评论仅供网友表达个人看法,并不表明土木工程网同意其观点或证实其描述!
验证码:
热门标签
暖通设计
暖通图纸
暖通空调知识
暖通施工
施工交底
工艺工法
暖通毕业设计
实习报告
工作总结
常用表格
暖通下载
暖通图纸
办公楼中央空调设计图纸
暖通施工
某办公楼空调工程施工组织设计 28P
毕业设计
暖通空调毕业设计计算书
暖通课件
暖通空调图例与符号大全
工艺工法
变频多联机空调设计图纸
常用表格
暖通设计参数
实习报告
中央空调实习总结报告
工作总结
暖通专业工作总结
某政府办公大楼空调系统毕业设计
十一层酒店空调工程毕业设计
某办公楼中央空调系统设计(含图纸) 76P
某综合写字楼暖通空调毕业设计 73P
热点论文
工程知识
建筑论文
3月1日起执行:住建部制定新版《工程保函示范文本
结构论文
装配式建筑从生产到施工,图文解析!
水利论文
如何高效节水灌溉
园林论文
史上最全景观植物配置表,建议收藏!
路桥论文
最新99份道路、桥梁、轨道、隧道施工组织设计汇总
电气论文
最新50份水电安装工程施工方案、施工组织设计整理
造价论文
7月1日后,工程造价咨询资质在全国范围内正式取消
CAD教程
AutoCAD2022简体中文版安装教程
施工知识
施工进度计划编制的9个问题
建筑知识
机场场道工程专业承包企业资质等级标准
造价知识
CQZF、CQBF、CQCF、CQTF是什么文件以及新点招标文
结构知识
浮重度、有效重度的区别是什么呢?
电气知识
8个你一定要知道的配电箱的要点
安全文明
十条建筑工地疫情防控要点
市政知识
道路常见试验检测方法
合同知识
工程劳务分包合同最新模板
互动交流
微信扫码关注公众号
获取更多土木资讯