ij³ÇÕòˮϵÁ¬Í¨×ÛºÏÖÎÀí¹¤³ÌÊ©¹¤Í¼£¨º¬¹¤³ÌÁ¿Çåµ¥£©
  • ×ÊÁϵȼ¶£º
  • ÊÚȨ·½Ê½£º×ÊÁϹ²Ïí
  • ·¢²¼Ê±¼ä£º2022-10-08
  • ×ÊÁÏÀàÐÍ£ºRAR
  • ×ÊÁÏ´óС£º79.1 MB
  • ×ÊÁÏ·ÖÀࣺˮÀûͼֽ
  • ÔËÐл·¾³£ºWinXp,Win2003,WinVista,Win ;
  • ½âѹÃÜÂ룺civilcn.com
ij³ÇÕòˮϵÁ¬Í¨×ÛºÏÖÎÀí¹¤³ÌÊ©¹¤Í¼£¨º¬¹¤³ÌÁ¿Çåµ¥£©
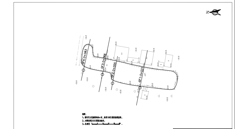
¸ù¾ÝxxxÕòˮϵ¸ñ¾Ö¼°¹æ»®ÒýÅäË®ÉèÊ©£¬²ÉÓá°±±Ë®ÄÏÒý¡¢ÏÈÎ÷ºó¶«¡±µÄ¹æ»®¸ñ¾Ö£¬Í¨¹ý¹¤³Ì´ëÊ©ºÍÔËÐе÷¶ÈÊֶΣ¬×Ô±±ÏòÄÏÒýÈëË®ÖÊÏà¶Ô½ÏºÃµÄxxºÓË®£¬¾­ÇøÓòÄڹǸɹµÇþÊäËͺÍÕ¢±ÃµÈÅäË®ÉèÊ©µÄͳһµ÷Å䣬×Ô±±ÏòÄϽøÈëxxxÕò£¬¾­ÄÚ²¿ºÓÍøÁ÷ͨÀ©É¢ºó Åųö£¬´Ó¶øÐγÉÒ»¸öÍêÕûµÄÒýÅäˮϵͳ¡£
Èí¼þ½ØÍ¼
  • ³ÇÕòˮϵÁ¬Í¨×ÛºÏÖÎÀí¹¤³ÌÊ©¹¤Í¼
  • ³ÇÕòˮϵÁ¬Í¨×ÛºÏÖÎÀí¹¤³ÌÊ©¹¤Í¼
  • ³ÇÕòˮϵÁ¬Í¨×ÛºÏÖÎÀí¹¤³ÌÊ©¹¤Í¼