一、爬架针对性防护措施
1、脚手架底部封闭
走道板、防护翻板采用防滑花纹钢板,具有高强度、绝燃、耐冲击经久耐用,底部均焊有方管加固,尤其适用于超高楼层大型建筑的外墙施工防护。内挑加宽走道板组合简单、强度高,有利于内侧间隙的减小,便于安全施工。
走道板与钢梁之间采用500翻板密封

走道板与钢柱之间采用350翻板密封

斜撑与钢梁相交处处理措施
钢梁上每隔数层有斜撑,斜撑外围竖直面与钢柱平齐,斜撑与钢梁相交,因此密封翻板需进行分段处理,斜撑与钢梁相交处翻板盖到斜撑处即可。由于斜撑与钢梁相交处不是每层都有,因此爬架设置3步翻板,至少保证有一步翻板与钢梁完全密封。

2、立面封闭
防护安全网采用冲孔网经龙骨焊接框架组合,具有耐腐蚀、绝燃、抗冲击特点。

爬架侧立面图
二、爬升流程
爬架在作业工况时设置两道两道附墙,爬架提升前,需等浇注结构拆模后,装上第三道附墙方可爬升。爬升完成后把底部附墙拆掉。

三、爬架系统平台安装技术措施
1、安装平台之前的安全措施
首次安装爬架需要对底部双排架进行拉结,水平间距4.5m,竖直间距3m,搭设爬架之前需要在地面拉设警戒线,警戒线距离建筑外边线15-20m,并派专人进行值守,其它无关人员不得入内。
拉结方式:在进行拉结时,应预先在结构板面预埋钢管,并用Φ48钢管把底部双排架与结构板面预埋钢管进行刚性拉结。
拉结点设置:水平拉结间距4.5m,可根据现场实际情况进行调整。

地面警戒线拉设示意图
2、爬架底部双排架的搭设
1)双排架的搭设要求
本项目爬架搭设平台(双排架)采用落地外满架,平台满架底部地面夯实并加设木跳板,每层与结构采用钢管拉结,拉结距离不超过6米,爬架组装并搭设3步后进行附着卸荷(见安装平台示意图)平台的强度要求为3KN/㎡,平台要增设防滑扣件,采用扣件、钢管φ48*3.0搭设,立杆纵距1.8m,横距1.5 m,步高1.8m,连墙为三步两跨。
2)平台由原防护
平台由原防护架改造而成,离钢柱距离不大于200mm,平台宽度1.2m,外侧搭设单排防护,单排防护高度1.5m。如原防护架宽度不足,外侧搭设挑架。在小横杆下面每个小横杆下面有两根立杆,每根立杆一个防滑扣。爬架组装两层后及时附墙卸荷,有计算书所得,双排架所受载荷为3000N/m2。爬架提升后,方可拆除底部双排架。
3)双排架搭设参数
本项目需要在安装楼层(2F)的下一层开始搭设安装平台,平台操作面在2层结构梁面下返200mm,需保证爬架底部翻板盖到结构梁上能完全密封;平台宽度1.2m(详见:附表)。
项 目尺寸要求脚手板面水平度控制10-30mm双排架内缘离钢柱距离≤200mm双排架外侧搭设单排防护高度1500mm双排架宽度1200mm

爬架搭设平台示意
3、连墙构造设置的注意事项
1)确保杆件间的连接可靠。扣件必须拧紧,垫木必须夹持稳固、避免脱出。
2)装设连墙件时,应保持立杆的垂直度要求,避免拉固时产生变形。
3)当连墙件轴向荷载的计算值大于6KN时,应增设扣件以加强其抗滑动能力。特别是在遇有强风袭来之前,应检查和加固连墙措施,以保架子安全。
4)连墙构造中的连墙杆或拉筋应垂直于墙面设置,并呈水平位置或稍向脚手架的一端倾斜,但不容许向上翘起。
爬架搭设属于高空作业,操作人员必须带好安全帽、正确佩戴安全带。并按照安装技术要求严格执行。
安装步骤为:搭设平台架并做水平调整→铺设龙骨板→安装下节导轨、竖龙骨、辅助竖龙骨→加辅助支撑杆及斜拉杆→水平钢性拉结→安装第二道龙骨板→安装第一道安全立网→安装第一道附墙件并卸荷→安装中节导轨、竖龙骨、辅助竖龙骨→连续组拼架体直到安装完2层各组架为止→连续组拼架体直到安装完3层各组架为止→连续组拼架体直到安装完4层各组架为止→铺设电源线→安装提升设备(进入运行阶段)。
操作步骤如下:

龙骨板的组装
说明:
1、按平面布置图的布置尺寸摆放龙骨板;
2、用专用的节点板连接龙骨板并用扣件固定好。

竖龙骨的组装
说明:
1、按平面布置图的布置尺寸组装竖龙骨;
2、用专用的斜杆固定好竖龙骨。

第二步龙骨板的组装
说明:按方案的设计组装第二步龙骨板
安全网的组装
说明:按方案的设计组装安全网

竖龙骨连接节点图

龙骨板直角处连接节点图

冲孔网效果图

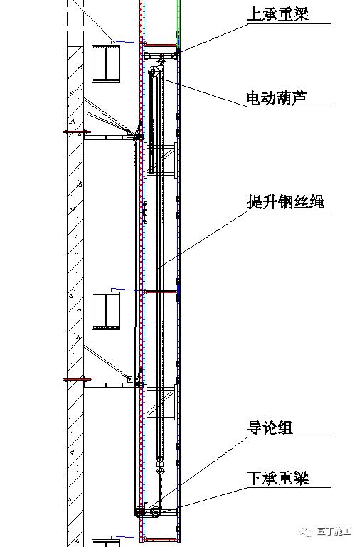
提升系统示意图

内挑板、翻板连接大样图

上承重梁连接节点大样图

附着节点大样图

防坠装置节点效果图

提升节点大样图
细部连接节点示意图如下:
电缆、电控柜、电葫芦的安装
电缆线、电缆的布置要求。配电系统采用三相五线制的接零保护系统,从控制室开始沿两边架体铺设至分片处,电缆线应穿入PVC管铺设在第三步走道板(龙骨板)下,用扎带与架体固定,以免受到冲击造成意外。电缆长度要考虑增加提升一层的长度。

电控柜要求:电控柜采用可靠的接零或接地保护措施,须设漏电保护装置、交流主电源总线、五芯线进入控制台前必须加设保险丝及电源总闸。(见动力系统电气原理图 )
电动葫芦的安装要求:所有电动葫芦在安装前必须检查,安装时,必须检查链条是否翻转、扭曲,防止卡链。接通电源后必须保持正反转一致,在使用过程中换接电源线,亦必须保持正反转的绝对一致,以通电试机为准。同步提升误差不得大于30mm/层。
电控柜、电动葫芦外壳按要求接零保护。

