您当前位置:首页 » 土木装修 » 家具图纸
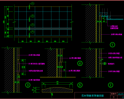
室内设计标准节点(石材,饰面板,拼接等)
  • 资料等级:
  • 授权方式:资料共享
  • 发布时间:2021-08-17 08:28:47
  • 资料类型:RAR
  • 资料大小:5.27 MB
  • 资料分类:土木装修
  • 运行环境:WinXp,Win2003,WinVista,Win ;
  • 解压密码:civilcn.com
室内设计标准节点(石材,饰面板,拼接等)
室内设计标准节点(石材,饰面板,拼接等) 包括:石材饰面接合详图、石材墙面及转角接合详图、石材饰面铺贴节点构造详图、石材饰面干挂节点构造详图、石材饰面干挂锚件详图、石材饰面装修详图、石材饰面装饰柱构造详图、饰面板电梯厅装修详图、隔音.吸声饰面墙节点详图、饰面板接合缝详图、饰面板踢脚线装修详图、饰面板造型墙装修详图等。
软件截图
  • 室内设计标准节点(石材,饰面板,拼接等)
  • 室内设计标准节点(石材,饰面板,拼接等)
  • 室内设计标准节点(石材,饰面板,拼接等)