您当前位置:首页 » 土木装修 » 装修图纸
360㎡住宅样板间室内装修施工图纸(含效果图)
  • 资料等级:
  • 授权方式:资料共享
  • 发布时间:2020-07-08 08:46:34
  • 资料类型:RAR
  • 资料大小:47.9 MB
  • 资料分类:土木装修
  • 运行环境:WinXp,Win2003,WinVista,Win ;
  • 解压密码:civilcn.com
360㎡住宅样板间室内装修施工图纸(含效果图)
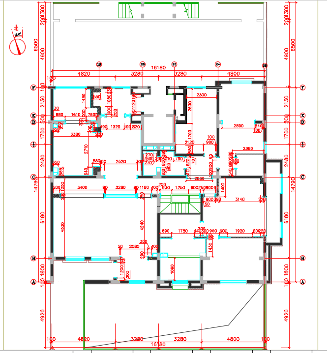
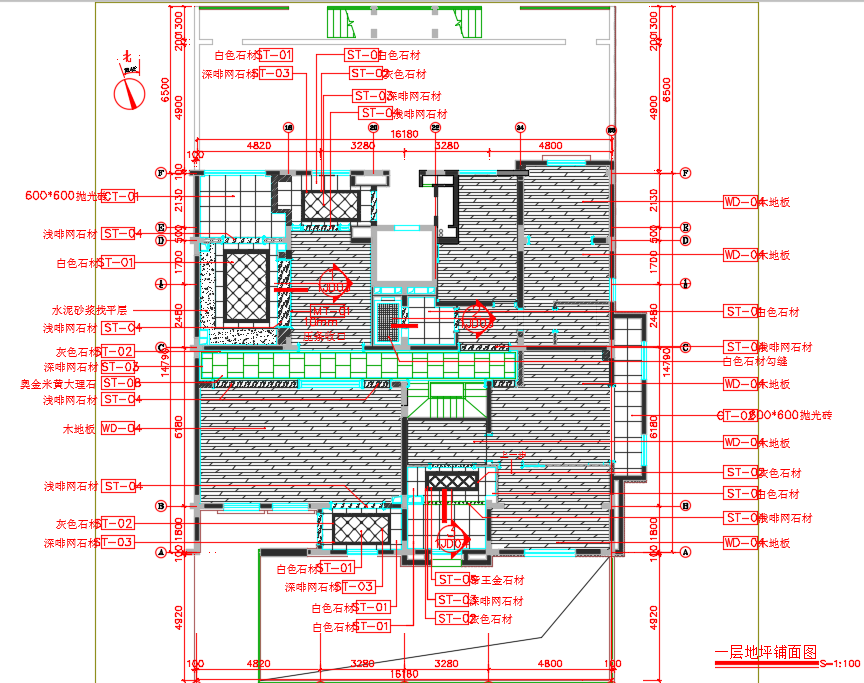
360㎡住宅样板间室内装修施工图纸(含效果图)包括了原始平面图、设计平面图、放样平面图、地坪铺面图、地铺放样图、设计天花图、天花尺寸图、灯具定位图、灯具连线图、空调配置图、强弱电定位图、给排水点位布置图、四向立面索引图、玄关一立面图、餐厅A C立面图、走廊A C立面图、走廊B D立面图、客厅A C立面图、书房立面图、主卧立面图、衣帽间A B立面图、线条大样图、天花大样图等。
软件截图
  • 360㎡住宅样板间室内装修施工图纸(含效果图)
  • 360㎡住宅样板间室内装修施工图纸(含效果图)
  • 360㎡住宅样板间室内装修施工图纸(含效果图)
  • 360㎡住宅样板间室内装修施工图纸(含效果图)
  • 360㎡住宅样板间室内装修施工图纸(含效果图)
  • 360㎡住宅样板间室内装修施工图纸(含效果图)