您当前位置:首页 » 土木装修 » 装修图纸
109㎡住宅室内装修施工图纸(含效果图)
  • 资料等级:
  • 授权方式:资料共享
  • 发布时间:2020-07-08 10:32:22
  • 资料类型:RAR
  • 资料大小:24.1 MB
  • 资料分类:土木装修
  • 运行环境:WinXp,Win2003,WinVista,Win ;
  • 解压密码:civilcn.com
109㎡住宅室内装修施工图纸(含效果图)
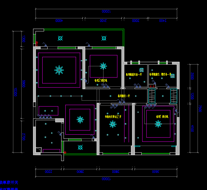
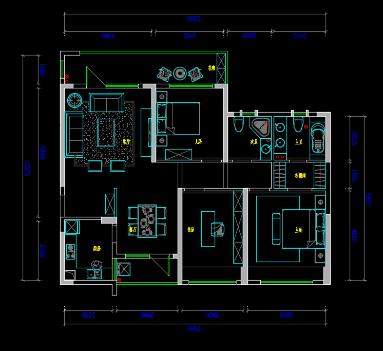
109㎡住宅室内装修施工图纸(含效果图)包括了原始勘测图、墙体定位图、面积分布图、平面布局图、家具尺寸图、强弱电布局图 、水路布局图、天花布局图 、天花尺寸图、灯具尺寸图、空调定位图、开关分布图、电视背景立面示意图 、沙发背景立面示意图 、主卧背景立面示意图、书房背景立面示意图、儿卧背景立面示意图、厨房排砖图、次卫排砖图、地面排砖图家具尺寸图等。
软件截图
  • 109㎡住宅室内装修施工图纸(含效果图)
  • 109㎡住宅室内装修施工图纸(含效果图)
  • 109㎡住宅室内装修施工图纸(含效果图)
  • 109㎡住宅室内装修施工图纸(含效果图)
  • 109㎡住宅室内装修施工图纸(含效果图)
  • 109㎡住宅室内装修施工图纸(含效果图)
  • 109㎡住宅室内装修施工图纸(含效果图)