您当前位置:首页 » 土木装修 » 装修图纸
三层办公楼外立面装修施工图纸
  • 资料等级:
  • 授权方式:资料共享
  • 发布时间:2020-07-08 16:08:15
  • 资料类型:RAR
  • 资料大小:88.9 MB
  • 资料分类:土木装修
  • 运行环境:WinXp,Win2003,WinVista,Win ;
  • 解压密码:civilcn.com
三层办公楼外立面装修施工图纸
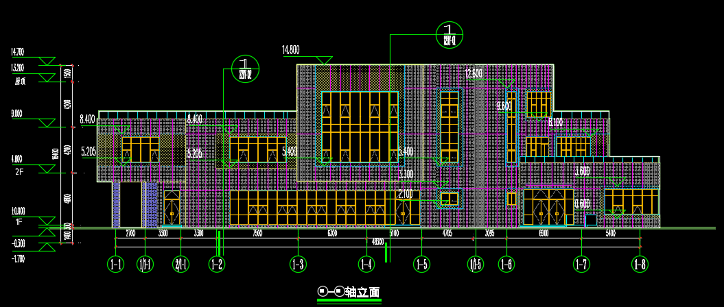
三层办公楼外立面装修施工图纸包括了地下层平面图、一层平面图、二层平面图、三层平面图、屋顶平面图、室外吊顶平面图、立面图、墙身大样图、展开大样图、剖面图、节点图等。
软件截图
  • 三层办公楼外立面装修施工图纸
  • 三层办公楼外立面装修施工图纸
  • 三层办公楼外立面装修施工图纸
  • 三层办公楼外立面装修施工图纸
  • 三层办公楼外立面装修施工图纸
  • 三层办公楼外立面装修施工图纸
  • 三层办公楼外立面装修施工图纸