您当前位置:首页 » 土木装修 » 装修图纸
三层五居室别墅样板房室内装修施工图纸
  • 资料等级:
  • 授权方式:资料共享
  • 发布时间:2020-07-09 15:13:35
  • 资料类型:RAR
  • 资料大小:4.96 MB
  • 资料分类:土木装修
  • 运行环境:WinXp,Win2003,WinVista,Win ;
  • 解压密码:civilcn.com
三层五居室别墅样板房室内装修施工图纸
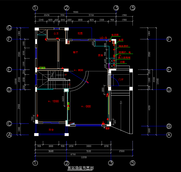
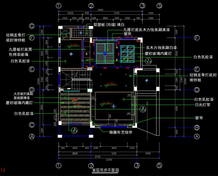
三层五居室别墅样板房室内装修施工图纸包括了首层平面布置图、二层平面布置图、三层平面布置图、首层铺设平面图、首层更改平面图、首层吊顶平面图、首层吊顶电路连线图、首层插座布置图、首层水路布置图、首层3-3立面图、首层3-3俯视图、首层1-1立面图、客房床头背景立面图、小孩房床头背景立面图、 三楼休闲厅立面图、剖面图等。
软件截图
  • 三层五居室别墅样板房室内装修施工图纸
  • 三层五居室别墅样板房室内装修施工图纸
  • 三层五居室别墅样板房室内装修施工图纸
  • 三层五居室别墅样板房室内装修施工图纸
  • 三层五居室别墅样板房室内装修施工图纸
  • 三层五居室别墅样板房室内装修施工图纸