您当前位置:首页 » 土木装修 » 装修图纸
四层住宅样板房室内装修施工图纸(含效果图)
  • 资料等级:
  • 授权方式:资料共享
  • 发布时间:2020-07-09 15:23:08
  • 资料类型:RAR
  • 资料大小:12.4 MB
  • 资料分类:土木装修
  • 运行环境:WinXp,Win2003,WinVista,Win ;
  • 解压密码:civilcn.com
四层住宅样板房室内装修施工图纸(含效果图)
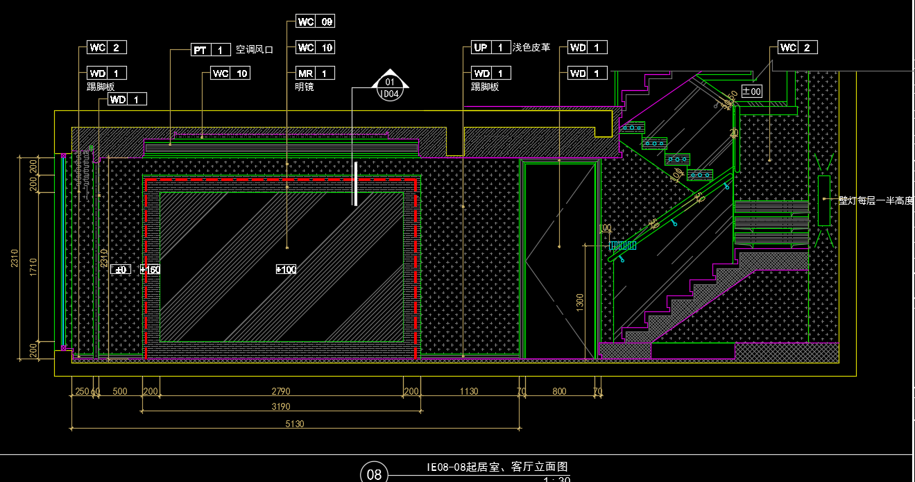
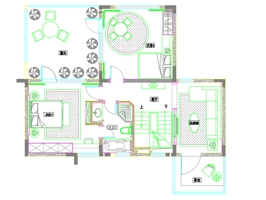
四层住宅样板房室内装修施工图纸(含效果图)包括了一层平面布置图、一层原始平面图、二层平面布置图、三层平面布置图、四层平布置面图、门厅立面图、客厅立面图、起居室立面图、厨房立面图、次卧立面图、更衣室立面图、主卫立面图、次卫立面图、佣人房立面图等。
软件截图
  • 四层住宅样板房室内装修施工图纸(含效果图)
  • 四层住宅样板房室内装修施工图纸(含效果图)
  • 四层住宅样板房室内装修施工图纸(含效果图)
  • 四层住宅样板房室内装修施工图纸(含效果图)
  • 四层住宅样板房室内装修施工图纸(含效果图)
  • 四层住宅样板房室内装修施工图纸(含效果图)