您当前位置:首页 » 土木装修 » 装修图纸
254㎡别墅样板房室内装修施工图纸(含效果图)
  • 资料等级:
  • 授权方式:资料共享
  • 发布时间:2020-07-09 16:20:33
  • 资料类型:RAR
  • 资料大小:24.3 MB
  • 资料分类:土木装修
  • 运行环境:WinXp,Win2003,WinVista,Win ;
  • 解压密码:civilcn.com
254㎡别墅样板房室内装修施工图纸(含效果图)
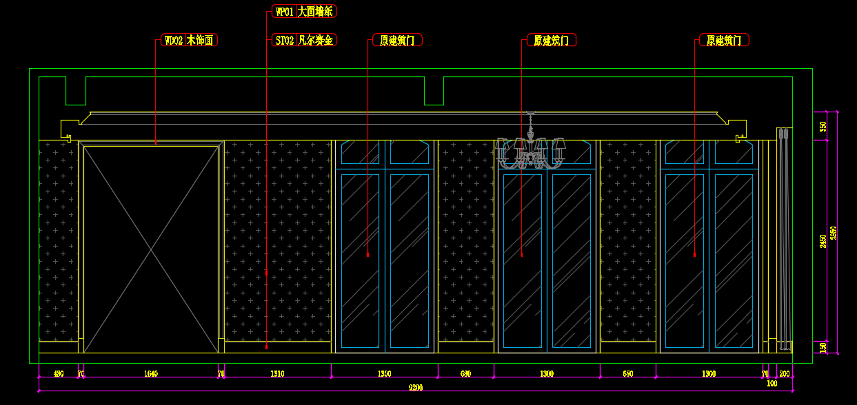
254㎡别墅样板房室内装修施工图纸(含效果图)包括了一层平面布置图、一层天花布置图、一层灯位布置图、一层地面布置图、一层隔墙尺寸图、一层立面索引图、一层玄关立面图、一层客厅立面图、一层客厅立面图、一层餐厅立面图、一层厨房立面图、一层次卧立面图、一层公卫立面图、二层主卧立面图、二层主卧衣帽间立面图、二层主卫立面图、二层书房立面图、二层次卧二过道立面图、二层次卧二立面图、二层次卫立面图、配电箱系统图、插座平面布置图、照明平面布置图、给水平面布置图等。
软件截图
  • 254㎡别墅样板房室内装修施工图纸(含效果图)
  • 254㎡别墅样板房室内装修施工图纸(含效果图)
  • 254㎡别墅样板房室内装修施工图纸(含效果图)
  • 254㎡别墅样板房室内装修施工图纸(含效果图)
  • 254㎡别墅样板房室内装修施工图纸(含效果图)
  • 254㎡别墅样板房室内装修施工图纸(含效果图)