您当前位置:首页 » 土木装修 » 装修图纸
457㎡二层售楼处装修施工图纸(含效果图)
  • 资料等级:
  • 授权方式:资料共享
  • 发布时间:2020-07-10 08:29:08
  • 资料类型:RAR
  • 资料大小:54.7 MB
  • 资料分类:土木装修
  • 运行环境:WinXp,Win2003,WinVista,Win ;
  • 解压密码:civilcn.com
457㎡二层售楼处装修施工图纸(含效果图)
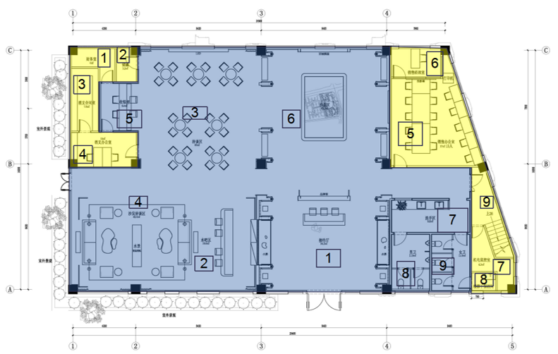
457㎡二层售楼处装修施工图纸(含效果图)包括了1F原始平面图、1F隔墙尺寸图、1F地坪布置图、1F天花布置图、1F灯具尺寸图、1F开关回路图、1F空调点位图、1F插座点位图、1F水路点位图、1F立面索引图、2F原始平面图、2F平面布置图、2F隔墙尺寸图、2F地坪布置图、2F天花布置图、接待厅立面、接待厅立面C/沙发洽谈区立面、沙盘区立面C/接待厅立面、洗手区立面、女卫生间立面、收银室立面、走廊立面、节点大样图、楼梯立面图等。
软件截图
  • 457㎡二层售楼处装修施工图纸(含效果图)
  • 457㎡二层售楼处装修施工图纸(含效果图)
  • 457㎡二层售楼处装修施工图纸(含效果图)
  • 457㎡二层售楼处装修施工图纸(含效果图)
  • 457㎡二层售楼处装修施工图纸(含效果图)
  • 457㎡二层售楼处装修施工图纸(含效果图)