您当前位置:首页 » 土木装修 » 装修图纸
六层商业综合楼幕墙施工图纸(PDF格式)
  • 资料等级:
  • 授权方式:资料共享
  • 发布时间:2020-08-11 14:52:10
  • 资料类型:RAR
  • 资料大小:60.3 MB
  • 资料分类:土木装修
  • 运行环境:WinXp,Win2003,WinVista,Win ;
  • 解压密码:civilcn.com
六层商业综合楼幕墙施工图纸(PDF格式)
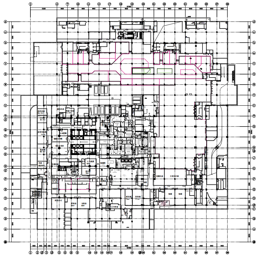
六层商业综合楼幕墙施工图纸(PDF格式)包括了局部立面图、北立面彩釉玻璃大样图、北立面系统彩色立面图、负一层平面图、三层平面图、六层平面图、局部立面图、横剖节点图、竖剖节点图、局部立面图等。
软件截图
  • 六层商业综合楼幕墙施工图纸(PDF格式)
  • 六层商业综合楼幕墙施工图纸(PDF格式)
  • 六层商业综合楼幕墙施工图纸(PDF格式)
  • 六层商业综合楼幕墙施工图纸(PDF格式)
  • 六层商业综合楼幕墙施工图纸(PDF格式)
  • 六层商业综合楼幕墙施工图纸(PDF格式)
  • 六层商业综合楼幕墙施工图纸(PDF格式)
推荐下载
评论网友评论仅供网友表达个人看法,并不表明土木工程网同意其观点或证实其描述!
验证码: 验证码