您当前位置:首页 » 土木装修 » 装修图纸
办公室室内装修施工图纸
  • 资料等级:
  • 授权方式:资料共享
  • 发布时间:2020-08-13 08:14:21
  • 资料类型:RAR
  • 资料大小:1.4 MB
  • 资料分类:土木装修
  • 运行环境:WinXp,Win2003,WinVista,Win ;
  • 解压密码:civilcn.com
办公室室内装修施工图纸
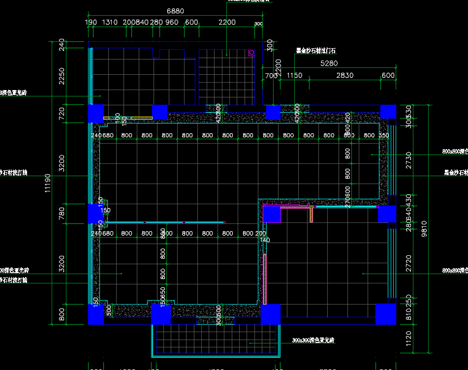
办公室室内装修施工图纸包括了原始平面图、平面布置图、家具尺寸图、地面布置图、顶面布置图、顶面尺寸索引图、灯具尺寸索引图、立面索引图、办公区、接待区立面图、会议室立面图、剖面图等。
软件截图
  • 办公室室内装修施工图纸
  • 办公室室内装修施工图纸
  • 办公室室内装修施工图纸
  • 办公室室内装修施工图纸
  • 办公室室内装修施工图纸
  • 办公室室内装修施工图纸