您当前位置:首页 » 土木装修 » 装修图纸
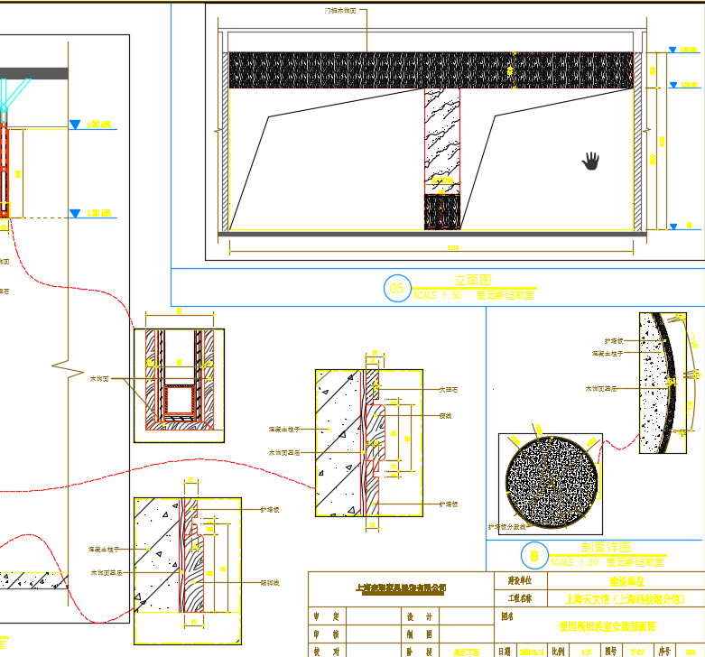
门套、护墙板节点详图
  • 资料等级:
  • 授权方式:资料共享
  • 发布时间:2020-09-14 14:24:57
  • 资料类型:RAR
  • 资料大小: 1.12 MB
  • 资料分类:土木装修
  • 运行环境:WinXp,Win2003,WinVista,Win ;
  • 解压密码:civilcn.com
门套、护墙板节点详图
门套、护墙板节点详图包括基层平面测量尺寸、教室安装尺寸平面图、教室安装立面图、教室安装剖面图、教室安装剖面图等
软件截图
  • 门套、护墙板节点详图
  • 门套、护墙板节点详图
  • 门套、护墙板节点详图
推荐下载
评论网友评论仅供网友表达个人看法,并不表明土木工程网同意其观点或证实其描述!
验证码: 验证码