您当前位置:首页 » 土木装修 » 装修图纸
七层宾馆石材幕墙施工图
  • 资料等级:
  • 授权方式:资料共享
  • 发布时间:2021-08-13 16:09:22
  • 资料类型:RAR
  • 资料大小:689 KB
  • 资料分类:土木装修
  • 运行环境:WinXp,Win2003,WinVista,Win ;
  • 解压密码:civilcn.com
七层宾馆石材幕墙施工图
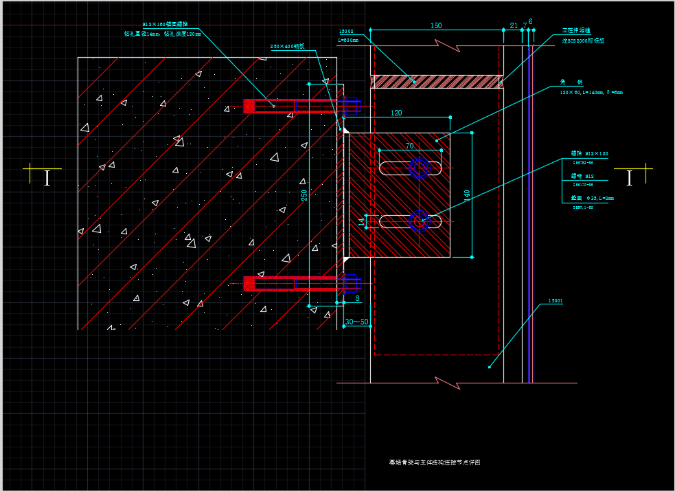
该工程最高层数为七层。基本风压W =0.4KN/m^2,地面粗糙度按B类计算,抗震要求按6度抗震设防设计。本工程隐框玻璃幕墙采用6mm厚钢化银灰色镀膜玻璃。
软件截图
  • 七层宾馆石材幕墙施工图
  • 七层宾馆石材幕墙施工图
  • 七层宾馆石材幕墙施工图