Äúµ±Ç°Î»Ö㺠Ê×Ò³» ÍÁľװÐÞ» ×°ÐÞͼֽ
ÖªÃûÆóÒµÊÛÂ¥´¦È«Ì××°ÐÞÊ©¹¤Í¼
  • ×ÊÁϵȼ¶£º
  • ÊÚȨ·½Ê½£º×ÊÁϹ²Ïí
  • ·¢²¼Ê±¼ä£º2022-02-15 10:40:27
  • ×ÊÁÏÀàÐÍ£ºRAR
  • ×ÊÁÏ´óС£º29.9 MB
  • ×ÊÁÏ·ÖÀࣺÍÁľװÐÞ
  • ÔËÐл·¾³£ºWinXp,Win2003,WinVista,Win ;
  • ½âѹÃÜÂ룺civilcn.com
ÖªÃûÆóÒµÊÛÂ¥´¦È«Ì××°ÐÞÊ©¹¤Í¼
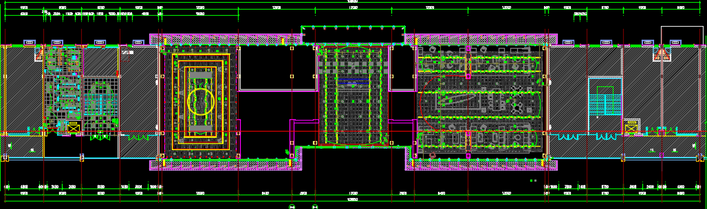
ÖªÃûÆóÒµÊÛÂ¥´¦È«Ì××°ÐÞÊ©¹¤Í¼°üÀ¨£ºÒ»²ãԭʼ½¨ÖþÆ½ÃæÍ¼¡¢Ò»²ãÆ½Ãæ²¼ÖÃͼ¡¢Ò»²ãǽÌ嶨λͼ¡¢Ò»²ãÔìÐÍÇ½Ãæ³ß´ç·ÅÏßͼ¡¢Ò»²ãÌ컨²¼ÖÃͼ¡¢Ò»²ãÕÕÃ÷µÆ¾ß¶¨Î»Í¼¡¢Ò»²ãÕÕÃ÷µÆ¾ßÁ¬Ïßͼ¡¢Ò»²ã×ÛºÏÌ컨ͼ¡¢Ò»²ãÌ컨¼Ò¾ß¶ÔÕÕͼ¡¢Ò»²ãµØÃæÆÌװͼ¡¢Ò»²ãÇ¿ÈõµçµãÎ»Æ½ÃæÍ¼µÈ£¬
Èí¼þ½ØÍ¼
  • ÖªÃûÆóÒµÊÛÂ¥´¦È«Ì××°ÐÞÊ©¹¤Í¼
  • ÖªÃûÆóÒµÊÛÂ¥´¦È«Ì××°ÐÞÊ©¹¤Í¼
  • ÖªÃûÆóÒµÊÛÂ¥´¦È«Ì××°ÐÞÊ©¹¤Í¼