您当前位置:首页 » 土木装修 » 装修图纸
办公楼外立面幕墙翻新工程施工图
  • 资料等级:
  • 授权方式:资料共享
  • 发布时间:2022-02-22 16:11:07
  • 资料类型:RAR
  • 资料大小:22.2 MB
  • 资料分类:土木装修
  • 运行环境:WinXp,Win2003,WinVista,Win ;
  • 解压密码:civilcn.com
办公楼外立面幕墙翻新工程施工图
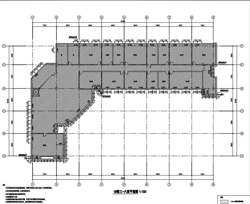
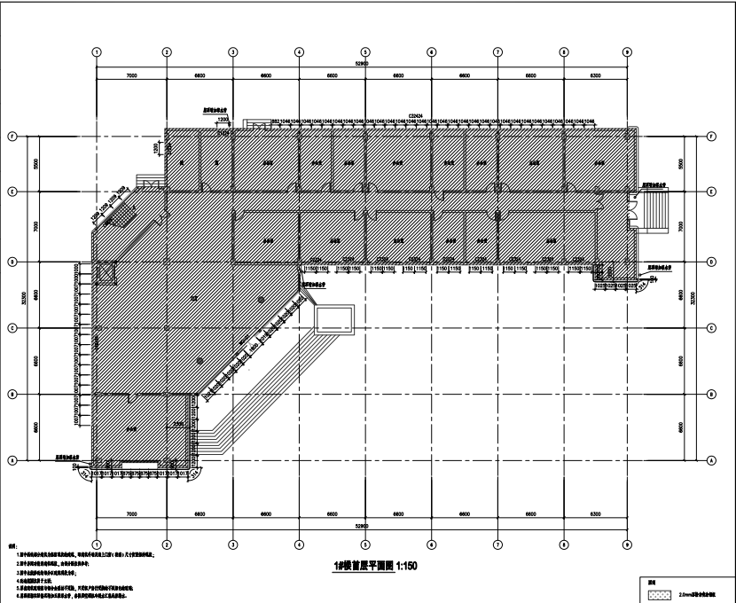
办公楼外立面幕墙翻新工程施工图包括:1#楼首层平面图、1#楼二层平面图、1#楼三~六层平面图、1#楼七层平面图、1#楼屋项层平面图、1#楼立面图、1#楼立面图、1#楼立面图、1#楼立面圈、2#楼首层平面图、2#楼二层平面图、2#楼屋项层平面图等。

软件截图
  • 办公楼翻新图,外立面翻新图,幕墙翻新图
  • 办公楼翻新图,外立面翻新图,幕墙翻新图
  • 办公楼翻新图,外立面翻新图,幕墙翻新图
推荐下载
相关下载
评论网友评论仅供网友表达个人看法,并不表明土木工程网同意其观点或证实其描述!
验证码: 验证码