您当前位置:首页 » 土木装修 » 装修图纸
二层男装店室内装修工程施工图
  • 资料等级:
  • 授权方式:资料共享
  • 发布时间:2022-04-15 10:25:28
  • 资料类型:RAR
  • 资料大小:16.7 MB
  • 资料分类:土木装修
  • 运行环境:WinXp,Win2003,WinVista,Win ;
  • 解压密码:civilcn.com
二层男装店室内装修工程施工图
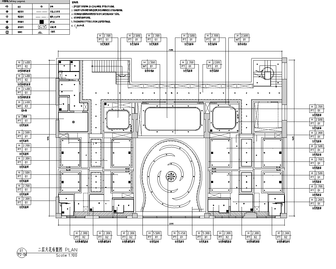
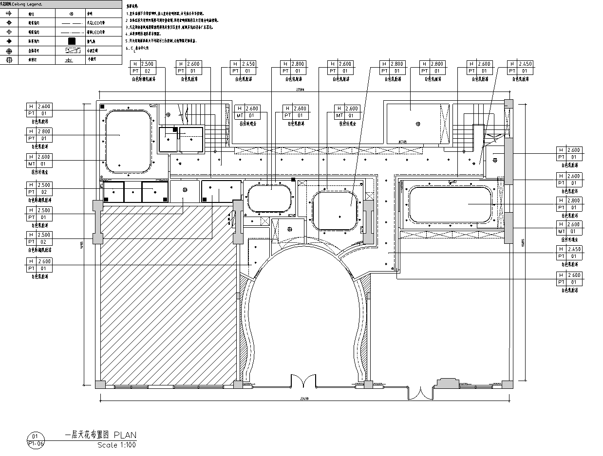
二层男装店室内装修工程施工图包括:大厅效果图、二层拆除图、二层平面布置图、一层插座布置图、一层拆除图、一层平面布置图、一层天花梁位图、二层天花布置图、一层地面铺贴图、一层天花布置图;
软件截图
  • 服装店装修图,室内装修图纸,装修施工图
  • 服装店装修图,室内装修图纸,装修施工图
  • 服装店装修图,室内装修图纸,装修施工图