您当前位置:首页 » 土木装修 » 装修图纸
98平方米两室一厅住宅室内装修施工图
  • 资料等级:
  • 授权方式:资料共享
  • 发布时间:2022-07-01 10:52:07
  • 资料类型:RAR
  • 资料大小:2.70 MB
  • 资料分类:土木装修
  • 运行环境:WinXp,Win2003,WinVista,Win ;
  • 解压密码:civilcn.com
98平方米两室一厅住宅室内装修施工图
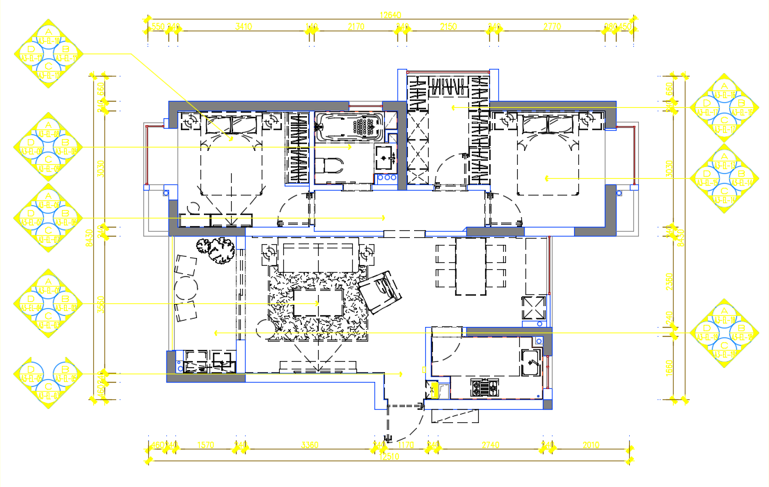
98平方米两室一厅住宅室内装修施工图包括:原始结构图、拆墙平面图、砌墙平面图、平面布置图、平面尺寸图、开关布置图、地坪铺设图、天花灯具尺寸图、天花造型尺寸图、天花布置图、强电插座布置图 、弱电插座布置图 、水路布置图、立面索引图等。
软件截图
  • 98平方米两室一厅住宅室内装修施工图
  • 98平方米两室一厅住宅室内装修施工图
  • 98平方米两室一厅住宅室内装修施工图
推荐下载
相关下载
评论网友评论仅供网友表达个人看法,并不表明土木工程网同意其观点或证实其描述!
验证码: 验证码